
Hjælp – hvordan får vi en skøn gårdhave?
Se hvordan Nanna og Kim får hjælp til at skabe en ny gårdhave med stemning fra forskellige materialer og bløde former.
AfLone Barslund
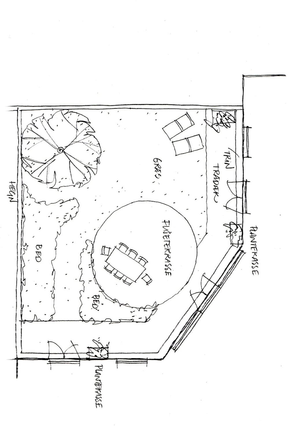
Vi kan jo se på bloggen at du indretter haverum ind imellem, så vi håber at du vil kaste et par gode indput efter vores gårdrum. I dag bruger vi det slet ikke, så elendigt er der i realiteten, med knækkede og løse fliser, gamle ubeskårede buske og masser af ukrudt. Det skal siges at det var et dødsbo vi overtog, som havde stået et godt stykke tid, men vi ved ikke rigtig hvad vi skal stille op med det.
Vi ønsker os et grønt uderum, der meget gerne må være nemt at holde, men som gerne må indeholde blomster og græs. Plads til leg må der også gerne være,- måske et legehus på sigt.
Nanna og Kim.







