sammenlagt lejlighed indretning soveværelse

Udfordrende indretning af sammenlagt lejlighed

Lena bor i en lejlighed, der er slået sammen med nabolejligheden. Men det kniber med at få rummene til at fungere – især soveværelset.

© Lone barslund

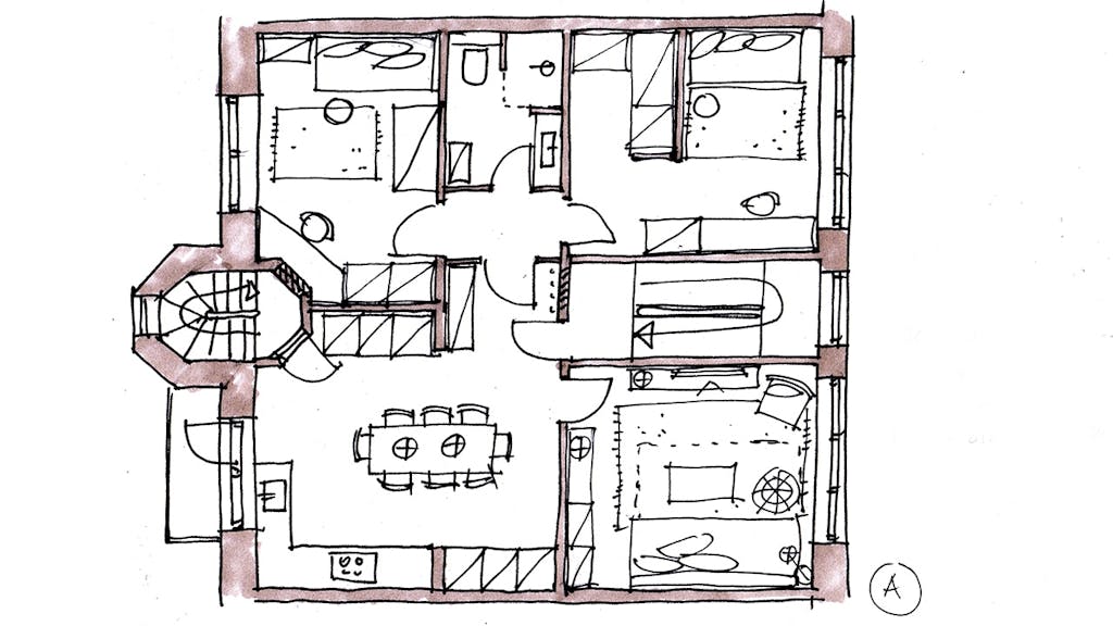
Vi har fået renoveret lejligheden så wc og gang til venstre (i den oprindelige 2v´er) er blevet inddraget i køkkenet, hvor der kommer altan. Vi har 2 børn, der får hver deres værelse. Værelset ud til gaden - tv, vil vi bruge som mastersoveværelse, men vil også gerne bruge det til noget stue/hyggerum og evt. med en kontorplads, fordi der ikke er plads til en egentlig stue eller arbejdsværelse. Køkkenet bruger vi i reglen meget tid i, vi har en gammel svensk slagbænk, et meget stort rundt spisebord med stole der passer til. Jeg håber at få forslag til at få indrettet soveværelse, så det bliver mere end blot det. Vi flytter tilbage til hovedstaden efter 3 år i Grønland - har flere skind (moskus, rensdyr og sæl), og et par tæpper (Kelim og et ægte), og elsker indretning a ´la mellemøsten, hvor alt foregår i gulvhøjde. Har du er forslag til, hvordan vi indretter os bedst muligt? P.S.. Indgangsdøren er tv.

Lena S

Jeg har lavet 2 skitser til dig, en hvor dine børn får hver deres værelse og hvor I voksne får en sofa/divan/seng i stuen. Det viser med ret stor tydelighed at I voksne får svært ved at få plads til jeres klædeskabe, som derfor er fordelt ud i børneværelserne. Man har jo en vis bunke ejendele som der skal være plads til. I entreen er der desuden plads til et par højskabe i dybde 35 cm og i alrummet kunne der blive god plads til højskabe som angivet som firkanter med diagonal streger. Med hensyn til jeres store runde bord, så sætter det begrænsninger fordi der hurtigt bliver for smalt at passere omkring det, så I kunne overveje at skifte det ud med et smallere langbord og derved få meget bedre manøvreplads i alrummet? Imellem badeværelse og alrum kan I evt sætte en glasdør op, så der er støjdæmpet imellem alrum og børn / badeværelse. Skitse B: Der er I rykket ind i værelset mod gården, med plads til det ønskede arbejdsbord. Børnene deler et værelse ved at der er sat en let skillevæg op i midten, så de får en privat afdeling hver, og så har I alle sammen stuen til fælles med god plads til den lange dobbelt- divan, småborde og fælles hygge. Deleværelset er fint så længe børnene er mindre, så I kan jo evt. starte med den plan og så se om I skal gå til plan A senere.

Lone

Lone Barslund

er bygningsarkitekt og har indrettet alt fra boliger til virksomheder. Lone Barslund har en omfattende viden om og erfaring med både indretning og ombygninger af private hjem. Lone Barslund har rådgivet BO BEDREs læsere i mere end 20 år.

© Lone Barslund
© Lone Barslund