Moderne nybyg med plads til hygge
Mantraet for ejerne, Esben og Jeanett, var at bygge innovativt og moderne og frem for alt skabe hyggelige leverum i deres nye, store hus. Se, hvordan arkitekt Rasmus Bak fik balanceret disse ønsker.
Af
Modstridende drømme blev til et fantastisk resultat
Et yngre par købte for fire år siden en kuperet dobbeltgrund tæt på strand, skov og naturfredede områder. Målet var at få bygget deres drømmehus. Eneste hage var bare, at Esben drømte om en stram, moderne villa, mens Jeanett forestillede sig en patriciervilla med bløde linjer og et ordentlig skud hygge.
─ Jeg sagde igen og igen, at selv om vi havde tænkt os at bygge stort, så ville jeg have et hyggeligt hjem, så vi ikke kom til at føle, at vi boede i en virksomhed, fortæller Jeanett og tilføjer, at kompromisset blev, at parret fik bygget et hus, der udefra måske ligner en super moderne kube, men som indeni og på facaden er domineret af naturmaterialer som træ og sten, der giver et organisk, stofligt udtryk.
─ Og så er materialerne jo anvendt i en planløsning, der både er praktisk, smuk og lægger op til intimitet og hygge, fortæller Jeanett. Der er fx visuel og auditiv sammenhæng mellem en del af stueetagen og første sal, fordi førstesalens stue ligger tilbagetrukket i forhold til spiseafdelingen lige under, så der er åbent mellem de to etager.
Se mere fra dette hus hos Danske BoligArkitekter.
BILLEDE Mod sydvest er huset åbnet op mod naturen med store vindues- og dørpartier i glas, der sørger for naturligt dagslys det meste af dagen. Haven er her i niveau med husets stue, mens bagsiden af huset går en etage længere ned, som er i niveau med baghaven.

Med arkitekthjælp blev drømme, krav og visioner mødt
Parret vidste fra begyndelsen, at de bedst kunne få alle deres drømme, krav og visioner omkring huset opfyldt, hvis de hyrede en arkitekt.
─ Arkitekttegnede huse er ikke kun for direktører. Mursten koster det samme, uanset hvordan man stabler dem, men der er stor forskel på de rum og den livskvalitet du får, når du bygger noget nyt. Og hvem kunne bedre sikre os gode, gennemtænkte rammer end en professionel, siger Esben og understreger med resultatet in mente, at han ikke ville drømme om at spare penge på arkitektposten.
Valget faldt på Rasmus Bak fra BAKS ARKITEKTER, som er kendt for at arbejde med stemning og stoflighed i arkitekturen. Ud fra parrets eget oplæg og en grundig besigtigelse af grunden gik arkitekten i gang med at tegne det 376 kvadratmeter store hus.
Det faktum, at grunden er meget kuperet, så arkitekten kun som et positivt benspænd, der var spændende at spille op til.
─ Det er altid rart, når naturen, udsigten eller naboens hus giver dig nogle udfordringer, som du skal løse og inkorporere i udformningen. Her betød den kuperede grund, at villaen kunne få hele tre etager, uden at bygningen ville syne bombastisk, fordi baghaven er i niveau med stueetagen og forhaven i niveau med kælderetagen, siger arkitekt Rasmus Bak.
Se flere af arkitekt Rasmus Baks projekter her.
BILLEDE Ved siden af garagen er husets indgangsparti placeret. Glashoveddøren har samme mål som vinduerne ovenover, hvilket får indgangen til at virke som ét stort skår igennem facaden.

Der skal skabes kontraster
Parret sværger på indretningssiden til kontraster. De rene, arkitektoniske linjer, stueetagens rå betongulve og minimalistiske køkken er blødt op med møbler og vinduesrammer i egetræ, ligesom især førstesalen og facaden byder på skifer og andre natursten med bløde konturer og changerende nuancer.
Udover at tænke i kontraster, har parret i fællesskab med arkitekten arbejdet med lyssætningen af huset. Samtlige lys ude og inde kan vippes, drejes og dæmpes.
─ Lys giver varme og kaster skygger, der giver liv i indretningen. For os bliver et fedt rum først rigtig fedt, når lyset er tænkt ind i arkitekturen og skaber rumlige oplevelser, slutter Jeanett.
Se også Maritim livsnyderbolig ved Lillebælt.
BILLEDE For at skabe kontrast og bløde arkitekturens skarpe linjer op, er der anvendt egetræ i alle vindues- og dørrammer. Wegners polstrede skalstol giver stoflighed til de rå, polerede betongulve med indlagt varme.

En stue med kant og med plads til alle
Det store gulvtæppe er dejligt blødt at sidde på, når der leges i gulvhøjde med børnene, og har desuden akustiske kvaliteter. Reolsystemmet Grid er fra Montana, mens den rummelige sofa hedder Match og er Prostoria. Sofabordet Coffee Table designet af Isamu Noguchi. Lampen er designet af Tom Dixon.

Grand Danois'eren kræver plads
Brændeovnen er placeret, så den virker som rumdeler og kan nydes både fra køkkenalrummet og pejsestuen. Muren er pudset op i fliselim og har næsten samme grå, rå look som betongulvet. Grand Danois’eren Emil er en hund, der nærmest kræver et stort hus at bo i.

Rummeligt, men stadig intimt
Arkitekt Rasmus Bak har gjort en dyd ud af at dele det store hus op i mindre, intime rum uden at give køb på fornemmelsen af luft. Her er stuedelen og køkkenalrummet delt op med en halvvæg, så de to afdelinger er adskilt og alligevel visuelt og auditivt forbundne.

Spis på 3,5 meter
Det 3,5 meter lange spisebord i gamle gulvplanker, der er lavet af arkitektens bror Claus Bak, er placeret i den del af huset, hvor der er kig op til næste etage. Over bordet hænger Hopelamper fra Luceplan, som fremhæver det dobbelthøje rum.

Tog wellness-følelsen med hjem
Parret holder meget af at rejse og gerne på wellnessmåden. Derfor er der skruet op for spa- og kurstemningen i deres badeværelse. Indretningen er holdt enkel, så hvert et møbel og alle materialer får lov at træde frem. Stenene på væggen hedder Stonepanel og er fra Kongebro, mens gulvet er skifersten med en struktur, der føles behagelig at gå på. Skiferen er blevet imprægneret, så den ikke suger vand til sig. Fritstående badekar og vask er fra Copenhagen Bath.
Fakta om villaen:
Familien fik_: _En arkitekttegnet villa på 376 m2 inkl. kælder. Huset indeholder to stuer, køkkenalrum, to børneværelser, tre badeværelser, forældresoveværelse, kontor, entré, bryggers, kælderrum, garage, tagterrasse og terrassedæk.
Proces: Familien gav et oplæg til arkitekt Rasmus Bak fra BAKS ARKITEKTER, der herefter tegnede villaen. Parret hyrede en entreprenør til at styre byggeriet.
Materialevalg indvendigt: Gulve i stueplan poleret beton, gulve første sal egetræ og naturskifer på badeværelserne. Herudover bl.a. Stonepanel sten fra Kongebro på badeværelsesvæggen.
Materialevalg udvendigt:Facade muret op i håndstrøgne tegl fra Petersen Tegl. Vindues- og dørrammer samt garageporte i egetræ.
Pris inkl. arkitekthonorar, materialer, arbejdsløn m.m.: 7 mio. kr_._

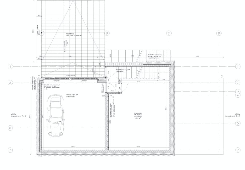
Kælderplan

Stueplan
I en vinkel rundt om huset er der anlagt en terrasse i egetræ, der flugter med gulvniveauet, hvilket gør, at terrassen opleves som en forlængelse af gulvet inden døre, så ude og inde flyder sammen. En gennemarbejdet belysningsplan gør, at udendørsbelysningen spiller sammen med lyset indenfor.

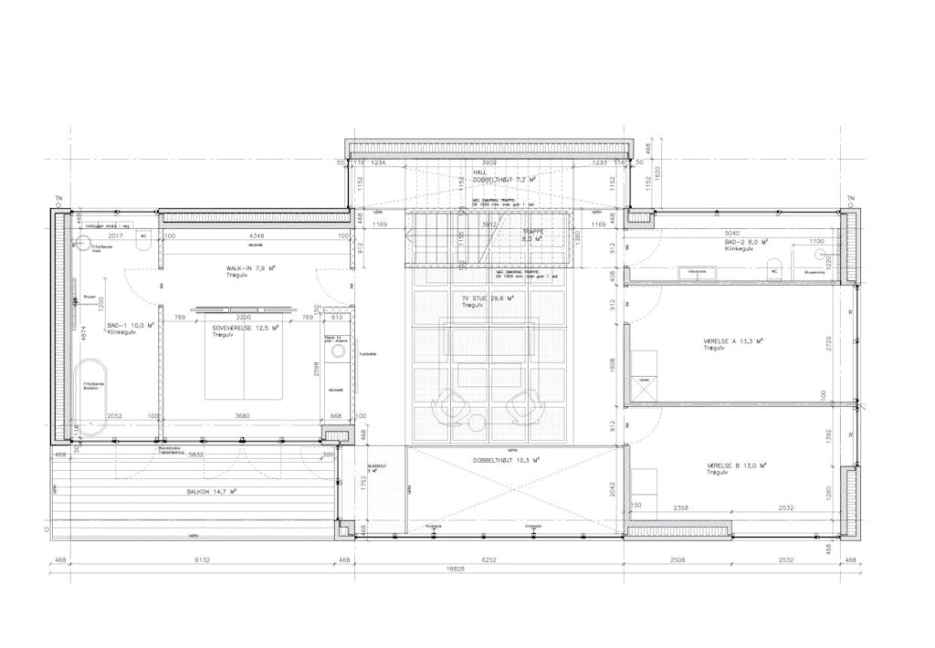
Første sal

Fakta om Danske BoligArkitekter
Denne boligreportage er blevet til i samarbejde med Danske BoligArkitekter. Gå på opdagelse blandt de flere hundrede projekter, der alle er beskrevet, ved at gå ind på danskeboligarkitekter.dk. Danske BoligArkitekter er en ordning med flere end 100 selvstændige arkitekter over hele landet, der alle har dokumenteret erfaring fra byggeprojekter for private boligejere. Medlemmerne er uddannet indenfor energioptimering af boliger eller kan dokumentere en tilsvarende viden. Alle medlemmer har dækning gennem Danske BoligArkitekters særlige ansvarsforsikring, der også dækker rådgiveransvar, selvom arkitekten lukker sin virksomhed.





