
Kan en renovering give os drømmehuset?
Se her, hvilke overvejelser, familien her, bør have med i tankerne inden de går i gang med den helt store renovering af drømmehuset.
Af — 12. juli 2016Hej Lone
Jeg har den seneste tid googlet utallige gange, og du er dukket op ad flere omgange med helt geniale ideer til indretningen. Så nu håber jeg du også kan hjælpe os!
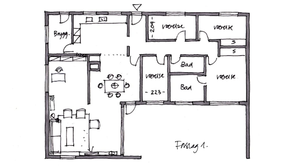
Vi har kig på et dejligt hus, og vi leger lige nu med tanken om at renovere lidt på huset, hvis vi ender med at købe.
Renoveringer vil blandt andet medføre, at der åbnes op til køkkenet ved at vælte den væg ind til den del af stuen, hvor brændeovnen er. Her tænker vi så at lave spisestue.
Den anden del af stuen er rigtig stor, hvilket giver os lidt udfordringer ift. at regne den bedste mulige indretning ud. Har du mon et bud på det?
Vi ser frem til at høre fra dig.
Med venlig hilsen Anne








