Min familie og jeg overvejer at købe denne fine lejlighed men har stærkt ( og hurtigt !) brug for vejledning inden vi kaster os ud i det.
Det er en meget fin gammel herskabs-herlighed fra ca. 1897, hvor repræsentation og selskabelighed tydeligvis har været i højsædet. Tre store stuer og et kæmpe soveværelse og så en mørk baggang til køkken- og tyendeafdeling, som vi har svært ved at se indrettet anderledes. Det er så her, vi håber du kan komme med forslag. Vi skal kunne leve der anno 2018 med to skolebørn og et liv, hvor hverdagen skal være mere praktisk. Vi ønsker os hjælp til en anden indretning, hvor køkkenet kommer mere i centrum og hvor vi får tre gode værelser, to badeværelser og god opbevaring, blandt andet i entreen. Der er tale om etablering af altan og det bliver udfor det nuværende soveværelse, hvor hele familien så ikke får glæde af den.
Stuerne mod gaden,- der er meget lidt trafikeret, kunne blive børnenes….Ideer?
VH Andreas
Kære Andreas.
Masser… !
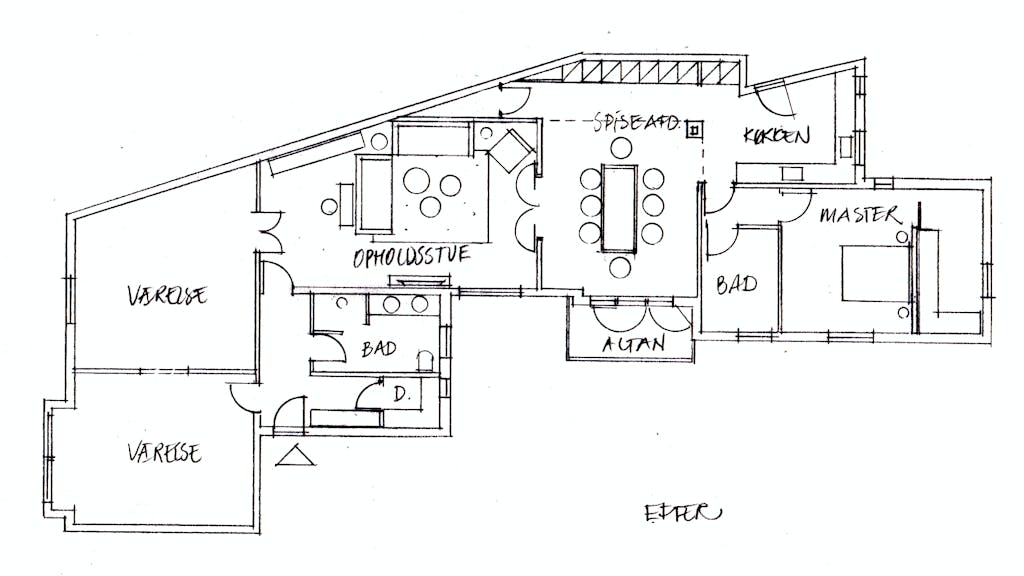
Tjenestepigernes ende indrettes til jeres voksen-afdeling med eget bad og et stort walk-in closet, ved at lave adgang imellem de to værelser. Ny adgang til jeres master bedroom i gangen ved siden af badet.
Fadeburet rives ned i køkkenet. I modsætning til hvad jeg ellers anbefaler, men det giver meget bedre albuerum og et mere reelt køkken,- og mere skabsplads får I et andet sted… Bemærk at dørene til hhv. badeværelse og gang er vendt, så dørbladene ikke kommer i vejen for den nye åbning til spiseafdelingen. Væggene ind til den mørke baggang rives ned, men for at bevare stukken i det oprindelige soveværelse,- nu spiseafdeling, sænker I loftet over baggangen, hvor der også skal lægges et jern op for at erstatte den bærende væg. ( stiplet)
Den kommende altan ender altså med at være til fælles fornøjelse med adgang fra jeres spiseafdeling.
På hele bagvæggen placerer I skabe som supplement til køkkenet men også til en masse andre ting,- mapper, sygrej, vaser, osv. Skorstenen bliver selvsagt stående, så der bliver kik og kontakt imellem spiseplads og køkken på begge sider af den.
Fløjdørene imellem den nye spiseafdeling og jeres opholdsstue er nye. Grunden til at jeg ikke blænder den ekst. fløjdørsåbning imellem stuen og værelset mod gaden er simpelthen det gennemgående lys, men også for at I på et senere tidspunkt kan indrette stue her igen. Der er uden tvivl et fint træarbejde i gerigterne omkring dørene, som er svære at erstatte senere.
Så er der entré og værelsesafdelingen tilbage. De to børn får nemlig værelserne mod gaden. Åbningen imellem værelserne lukker I af med møbelplader, der kan filtes og males som væggene. Igen for at bevare gerigterne omkring åbningen. Det lille toilet og kammeret bytter funktion, således at der indrettes et nyt, rummeligt badeværelse i kammeret og et godt depotrum/ garderoberum i toiletrummet. Imellem hoveddøren og depotet er der en god væg til knager og evt. både en hattehylde og skohylde.