Selvbygget er velbygget

Den store container ud mod vejen vidner stadig om en tid med byggerod og midlertidige løsninger, men familien er for længst faldet til i deres selvbyggede hus, der allerede har lagt rum til flere festlige sammenkomster.

Selvbygget hus i sorte ståltrapezplader
© Christina Kayser Onsgaard

Selvbygget hus i sorte ståltrapezplader

Steen Lauth er selvstændig tømrer, men det var egentlig ikke drømmen om selv at bygge hus, der gjorde, at familien havnede i landzone-kvarteret uden for Herlev med skøn udsigt til marker og Hareskoven. Steen og hustruen Rikke havde kort forinden flyttet deres tre døtre til en Rudolf Steiner Skole i området, og de blev hurtigt trætte af at køre i pendulfart mellem deres gamle hus i Brønshøj og pigernes nye skole i Herlev. Samtidig havde de begge et stort ønske om at bo et sted med mere natur. De købte spontant grunden, hvor der lå et lille A-hus og boede også i huset en kort periode. Men ret hurtigt blev det dog besluttet, at det skulle rives ned og erstattes af et nyt.

Steen Lauth skulle selv stå for byggeriet, og da Rikke Lauths far er arkitekt var det oplagt, at han tegnede de første skitser til huset.

– Jeg ville gerne bygge et længehus. Projektet har dog udviklet sig innovativt hen ad vejen, især efter at 2 R arkitekter med Rasmus Skaarup og Rasmus Frimer Andersen blev inddraget. De kom med mange både kreative, elegante og funktionelle udspil, som har fået det hele til at hænge bedre sammen, fortæller Steen Lauth.

Se flere billeder hos Danske BoligArkitekter her.

BILLEDE De store glasfacader i hver gavl kaster masser af lys gennem boligen. De sorte ståltrapezplader er med til at understrege husets enkle, skulpturelle form.

Ét langstrakt rum med plads til det hele
© Christina Kayser Onsgaard

Ét langstrakt rum med plads til det hele

Steen Lauth tog fri et lille halvt år for udelukkende at hellige sig sit eget husbyggeri, men i resten af byggeperioden har han skullet passe sit enmandsfirma og så bygge videre på sit eget hus om aftenen og i weekender.

– Og det har da været hårdt med dobbeltarbejde, især når vi hele tiden skulle være opmærksom på, at vores budget blev holdt, det var næsten det hårdeste, indrømmer han i dag.

Når han tænker tilbage på byggeprocessen er det dog påfaldende, at mange af de kreative løsninger i huset netop udspringer af, at der skulle tænkes i billigere løsninger og prioriteres hårdt.

Se flere projekter af arkitekt Rasmus Skaarup her.

BILLEDE Bortset fra viktualierummet bag køkkenet består førstesalen af ét eneste langstrakt rum med trappe i begge ender. Den trekantede glasfacade indrammer smukt det grønne udenfor. Snedkerkøkkenet har Steen selv tegnet og bygget, dog med kyndig assistance fra møbelsnedker Christian Riis. Køkkenet er inspireret af det kendte snedkerkøkkenbrand Garde Hvalsøe, som Steen Lauth også har rådført sig med undervejs.

Orange køkken med detaljer
© Christina Kayser Onsgaard

Orange køkken med detaljer

De 225 kvadratmeter er indrettet, så 1. salen er ét langt rum, der rummer både køkken og stue. Bag køkkenet kan man gå ind i et rummeligt viktualierum, hvor den madinteresserede familie opbevarer køkkenmaskiner, sække med mel og andre kolonialvarer. I underetagen er der fire værelser, to badeværelser og et bryggers. Dertil kommer to åbne rum i hver ende, hvor der er dobbelt loftshøjde. Det ene er kombineret hall, men også med plads til at øve musik. I det andet gavlrum er der en skøn hjemmearbejdsplads med udsigt til den gamle have.

Træ på både loft og gulv betyder nemlig, at akustikken er perfekt, noget som Steen og Rikke Lauth også har prioriteret højt i byggeriet.

  • "Vi er hele tiden med på sidelinjen i hinandens liv, selv om vi gør noget forskelligt. Pigerne kan spille deres musik, mens vi kan sidde og snakke et andet sted i huset. Det er et hus skabt til fest og mange mennesker, og det er sådan vi kan li’ det", siger Steen Lauth.

Se også det forvandlede 1970’er typehus her.

BILLEDE Rikke og Steen går meget op i madlavning og går derfor heller ikke ned på udstyr. Den industrielle dampovn i væggen er fra Convotherm, mens Steen Lauth selv har designet den store emhætte, som han derefter fik udført hos en smed.

Akustikloft og brændeovn
© Christina Kayser Onsgaard

Akustikloft og brændeovn

Det imponerende akustikloft fra Moelven har en smuk skulpturel effekt i det højloftede rum på førstesalen. For at holde omkostningerne nede, har Steen selv skåret de enkelte trælameller ud.

Hjemmekontor med lineal-dekoration
© Christina Kayser Onsgaard

Hjemmekontor med lineal-dekoration

I begge ender af huset er der trapper, der forbinder stueetagen med førstesalen. I denne ende er der indrettet en åben arbejdsplads med udgang til haven. Lineal-dekorationen på trappen er Rikke Lauths værk. Hun var træt af skuffer med linealer, der roder. Linealerne stammer fra Steens mor, der var teknisk tegner, før alt foregik på computer.

Tog naturen med indenfor
© Christina Kayser Onsgaard

Tog naturen med indenfor

Birketræet er Rikke Lauths idé og blev installeret, før husets gavle blev lukket helt af. Det byder velkommen i den store hall med trappe op til 1. salen.

Kvist med udsyn
© Christina Kayser Onsgaard

Kvist med udsyn

Både tag og facade er beklædt med coatede stålplader. Kvisten, der nærmest vokser ud af huset, skaber dynamik og spil i facaden og fungerer samtidig som ud­hæng over hoveddøren.

Fakta om huset:

Arkitekt: Rasmus Skaarup, r2 Arkitekter.

Størrelse: 225 m2 samt udhus på 35 m2

Type: Halvandet plan med sadeltag.

Proces: Rikke Lauths far, der er arkitekt, tegnede de første skitser til huset. Herefter blev Rasmus Skaarup og hans partner Rasmus Frimer Andersen inddraget i projektet, og så begyndte tingene ellers at udvikle sig. Steen Lauth er tømrer og har selv bygget.

Materialer udvendigt: Tag- og facadebeklædning i coatede stålplader fra Lindab, specialfremstillede glaspartier med 3 lags glas til gavlene.

Materialer indvendigt: akustiklofter fra Moelven, Køkken- og skabselementer fra Hanstholm.

Energi: Et kombineret jordvarme- og solcelleanlæg.
Solfangere på taget til opvarmning af vand.

Arkitekthonorar: ca. 75.000 kr.

Byggepris: ca. 11.000 kr. pr. m2 (selvbyg)

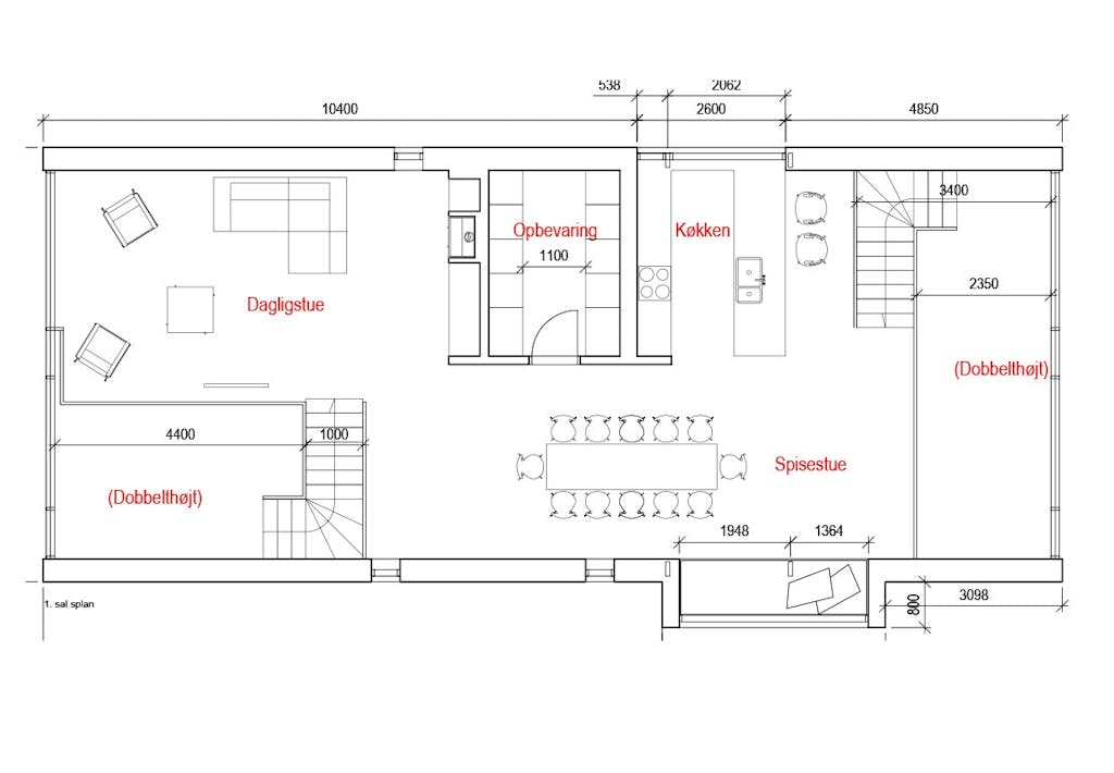
Plantegning stueetage

Plantegning stueetage

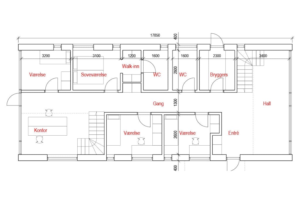
Plantegning 1. sal

Plantegning 1. sal

Fakta om Danske BoligArkitekter

Fakta om Danske BoligArkitekter

Denne boligreportage er blevet til i samarbejde med Danske BoligArkitekter. Gå på opdagelse blandt de flere hundrede projekter, der alle er beskrevet, ved at gå ind på danskeboligarkitekter.dk. Danske BoligArkitekter er en ordning med flere end 100 selvstændige arkitekter over hele landet, der alle har dokumenteret erfaring fra byggeprojekter for private boligejere. Medlemmerne er uddannet indenfor energioptimering af boliger eller kan dokumentere en tilsvarende viden. Alle medlemmer har dækning gennem Danske BoligArkitekters særlige ansvarsforsikring, der også dækker rådgiveransvar, selvom arkitekten lukker sin virksomhed.