Fra en til to etager: Himmelstræbende løsning gav befriende høj funkisvilla

En nedslidt bungalow i ét plan voksede til en moderne funkisvilla i to planer. Den himmelstræbende løsning har givet plads til flere terrasser i haven, fine udsigter over Aarhus Ådal og masser af lysindfald.

Solfyldt aftenterrasse
© Pia Enghild

Da Jesper og Annette Bach overtog den nedslidte bungalow var planen først at bygge til i længden. Men en eftermiddag kom arkitekt Rasmus Bak, som parret kender privat, forbi. Han kravlede op på taget og her fik han idéen til en helt anden slags udvidelse: At bygge ovenpå.

De første streger til den nye førstesal blev slået den eftermiddag på et foto i salgsopstillingen, og i dag er den lille bungalow forvandlet til en flot, hvid villa i to etager med tydelig inspiration fra funkisvillaer fra 1930’erne.

Overbygningen på bungalowen kom dog ikke i stand uden en del forhindringer. Arkitektens ideer harmonerede nemlig ikke helt med byggereglerne i området. Men ved at inddrage kommunen meget tidligt i processen og dokumentere, at byggeriet ikke ville skabe gener for naboerne, lykkedes det at komme i land med en dispensation.

Se flere billeder fra dette hus hos Danske BoligArkitekter her.

Nabovenligt design blev godkendt
© Pia Enghild

Gevinsten ved at bygge ovenpå i stedet for udad er bl.a. at familien har fået mere plads i haven til terrasser og hyggelige uderum. Dertil kommer, at de har fået en flot udsigt over forstaden Åbyhøj og ådalen vest for Aarhus, og endelig har de fået fantastiske lysindfald fra førstesalens store vinduespartier.

Selvom Annette og Jesper var nemme at få med på idéen om en ny førstesal, har de flere gange i processen følt sig positivt udfordret af arkitektens ideer, bl.a. da der skulle findes en løsning på trappen mellem de to etager. Parret ville rigtig gerne have mest muligt ud af kvadratmeterne, og derfor forestillede de sig en minimal trappe. Men Rasmus Bak, der er medlem af Danske BoligArkitekter foreslog i stedet at bruge 2 x 10 kvadratmeter til en hall, der åbner op til førstesalen, så snart man kommer ind ad hoveddøren.

Se flere af arkitekt Rasmus Baks projekter her.

  • Det var lidt af en åbenbaring for os, da Rasmus kom med ideen om hallen. Jo, det kostede nogle kvadratmeter i udnyttelsen, men vi var med på ideen, forklarer Jesper.

Rasmus Baks argumenter for hallen var, at den ville binde de to etager bedre sammen og gøre det lettere at se og snakke med børnene, der har værelser på førstesalen.

  • Det rum er jeg simpelt hen så glad for. Det er noget af det, vi er allermest tilfredse med, siger Jesper Bach.

Læs også: Sådan får du en ny førstesal på dit hus.

Stue med udgang til aftenterrasse
© Pia Enghild

De store glaspartier i stuen leder automatisk blikket videre ud på terrassen og i haven. Netop den kobling mellem inde og ude er familien ekstra glade for.

Hall med højt til loftet
© Pia Enghild

Husets hall byder velkommen med masser af luft og lys. Det høje rum sikrer en god kontakt mellem værelserne på førstesalen og opholdsarealerne i stueplan.

Skøn udsigt over Aarhus Ådal
© Pia Enghild

Himlens lys gennem store vinduer og udsigten over den brede ådal vest for Aarhus er et par af de store gevinster ved at bygge en førstesal oven på det oprindelige hus.

Køkkenet har morgensol
© Pia Enghild

Køkkenet er flyttet til østsiden af huset og har fået udgang til en lille terrasse, hvor morgenkaffen kan nydes. Indretningen er holdt helt enkel med hvide Corian-bordplader, sortlakerede underskabe og hvid højskabsvæg.

Badekarret kom med kran
© Pia Enghild

Badekarret er af italiensk sten, og så tungt, at det blev løftet ind i rummet med en kran, før taget blev lagt på huset.

Fakta om ombygningen

Familien Bach fik: en moderne funkisvilla i to planer. At bygge i højden har givet mere plads til både have og en glidende overgang mellem inde- og uderum, som var et varmt ønske fra parret. Fra køkken-alrummet er der udgang til en morgenterrasse, og fra stuen til en aftenterrasse/gårdhave. Førstesalen har store vinduespartier/lysindfald på de tre sider, der får mest sol.

Proces: Arkitekten har lavet tegningerne til boligen i tæt samarbejde med parret. Han har også haft kontakten til kommunen, medvirket til projekteringen, byggeaftale samt givet indspark til indretningen, da huset var bygget. Jesper Bach har selv bygget med undervejs og har haft kundskab til at stå for en del af projektet selv, men anbefaler at lade arkitekten stå for projektledelsen, hvis du ikke har erfaringer med det. Annette og Jesper har i øvrigt også selv anlagt haven.

Materialevalg udvendigt: Hvidpudsede mursten, tag af sort tagpap og regnværn af forpatineret sort aluminium. Vinduer fra IdealCombi, fremstillet af træ-komposit-aluminium (yderside af sort alu, hvidmalet træ på indersiden). Morgen- og aftenterrassen er opført af hårdt massaranduba-træ.

Materialevalg indvendigt: Corian-bordplader i køkken og bad. Planker af eg går igennem hele boligen, kombineret med italienske fliser i 60 x 60 cm i bad og entré. Trappens gelænder er glasplader, der også er sat uden på førstesalens terrassedøre som et gennemsigtigt alternativ til en fransk altan.

Pris: 2,5 mio. kr.

Arkitekthonorar: 75.000 kr. Rådgivningen omfattede skitseforslag og godkendelse hos myndighederne samt æstetisk delrådgivning.

Huset før ombygningen

Ejendomsmæglerens salgsopstilling med foto af det oprindelige hus. Her slog arkitekten de første streger til den nye førstesal.

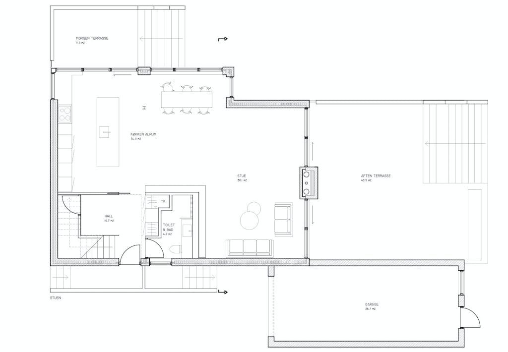
Plantegning stueetage

Bungalowen voksede fra 90 m2 i et plan til 180 m2 i to plan. Fra opholdsarealerne i stueetagen er der adgang til hhv. en lille morgenterrasse og en stor eftermiddagsterrasse på 45 m2 med en flot trappe ned til haven.

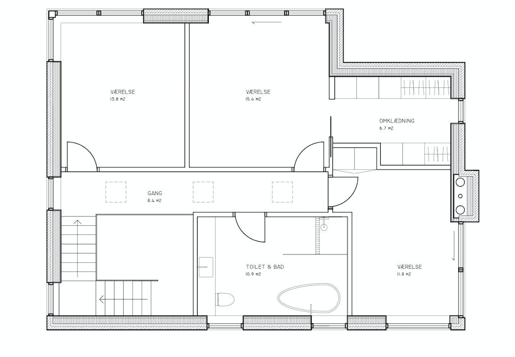
Plantegning 1. sal
Fakta om Danske BoligArkitekter

Denne boligreportage er blevet til i samarbejde med Danske BoligArkitekter. Gå på opdagelse blandt de flere hundrede projekter, der alle er beskrevet, ved at gå ind på danskeboligarkitekter.dk. Danske BoligArkitekter er en ordning med flere end 100 selvstændige arkitekter over hele landet, der alle har dokumenteret erfaring fra byggeprojekter for private boligejere. Medlemmerne er uddannet indenfor energioptimering af boliger eller kan dokumentere en tilsvarende viden. Alle medlemmer har dækning gennem Danske BoligArkitekters særlige ansvarsforsikring, der også dækker rådgiveransvar, selvom arkitekten lukker sin virksomhed.