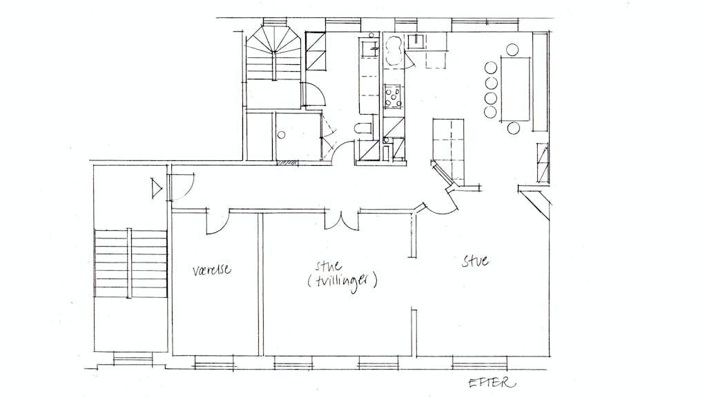
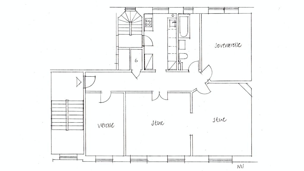
BREVKASSE Parret venter tvillinger. Nu mangler de et større bad og to værelser
Familien har brug for et nyt bud på indretningen. Arkitekten giver sine bedste råd.
AfLone Barslund
Familien har brug for et nyt bud på indretningen. Arkitekten giver sine bedste råd.
Af