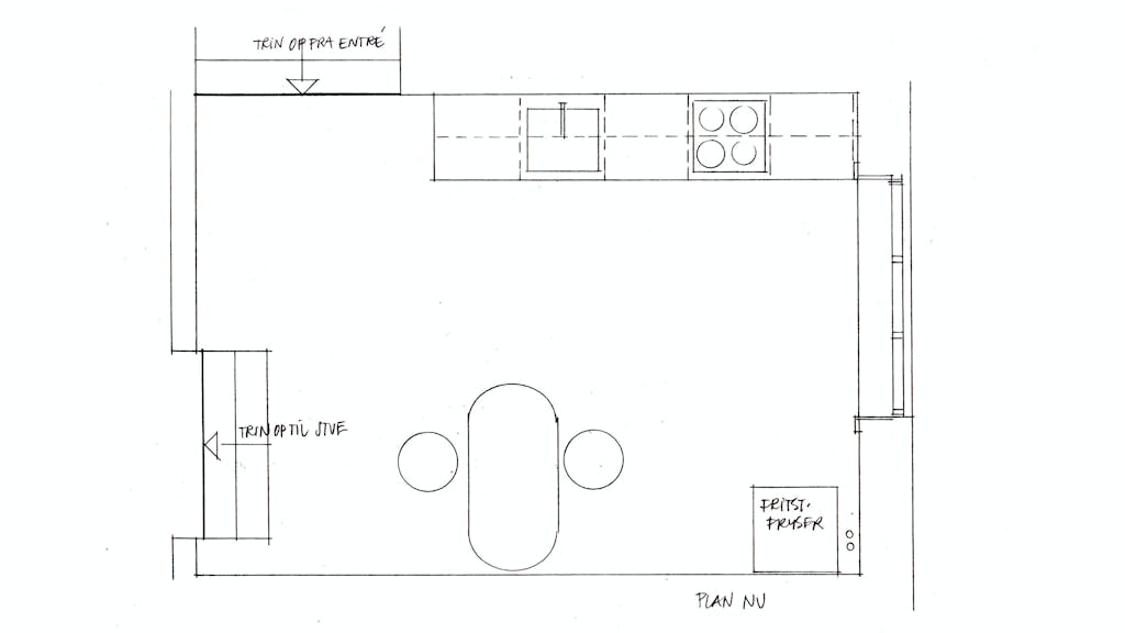
Hvordan indretter man et lejligheds-køkken optimalt?
Stine og Martin søger tips til, hvordan de får mest muligt plads til opbevaring i køkkenet. Arkitekten giver sine bedste råd.
AfLone Barslund
Stine og Martin søger tips til, hvordan de får mest muligt plads til opbevaring i køkkenet. Arkitekten giver sine bedste råd.
Af