
Kan vi få en hyggelig bolig ud af en gammel DSB-bygning?
En familie rykker ind i en tidligere DSB-tjenestebolig fra 1911 og ønsker at modernisere den hele vejen igennem. Men hvordan kan man værne om de fine rammer og opnå en ny funktionalitet?
AfKære BO BEDRE,
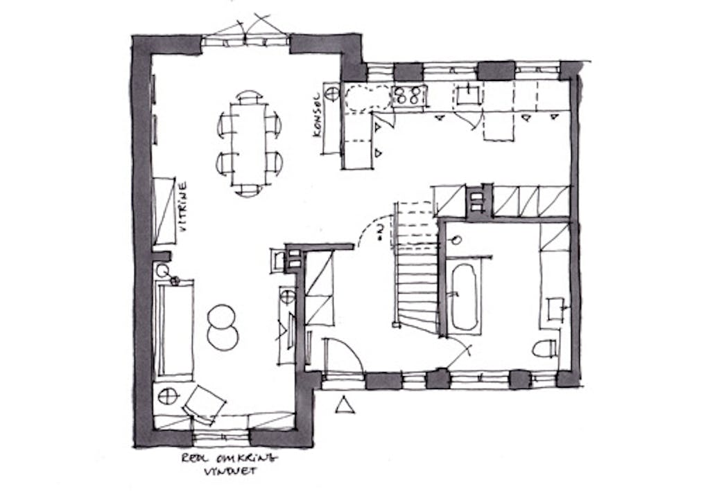
Vi skal bruge dit råd til indretning af et gammelt to-delt hus fra 1911, tidligere ejet af DSB og brugt som tjenestemandsbolig. Vi skal i gang med en total istandsættelse af de 119 kvm, der har den gamle charme udadtil, men som vi indvendigt ønsker at modernisere og udnytte de få kvm lidt bedre. Umiddelbart ønsker vi at inddrage vaskerum til køkken og åbne op ind til stuen.
Vi har overvejet at flytte gårdhavedøren fra køkken til stuen, for at bedre udnytte køkkenområdet. Døren til badeværelse ønsker vi at flytte, så man kommer ind fra entreen, og inddrage fyrrum til bad - dvs. hele firkanten bagom køkken bliver bad.
Vi har dog svært ved at se hvordan vi kan indrette køkkenet og stuen, så vi bedst udnytter pladsen. Mht. bad, må der gerne være plads til en vaskemaskine og evt. et lille badekar hvis muligt.
Et gammelt vitrineskab, der er 134cm i bredden og 180 højt, må gerne indgå i køkkenløsningen, og kan der findes plads til vores gamle kinesisk konsolbord på 160cm langt ville det være dejligt.
Plantegninger vedhæftet - det er kun den venstre del af huset er der vores. Mål fremgår af tegning, men sig endelig til, om dette skal specificeres. Håber virkeligt du vil hjælpe os med at komme frem til en god løsning!,
Kærligst, Silje, Peter og Baby Aurora








