Håndværkertilbud med muligheder

Denne familie har købt et lille hus, som kræver en særdeles kærlig hånd. Blandt andet skal stue-etagen bygges helt om. Læs ekspertens forslag her.

Kære Lone,

Vi har købt et lille hus med stueplan, som vi ønsker at ændre på, så vi får bedre plads til os og vores to børn.

Vi ønsker os et bryggers og et værelse mere. Vi kunne tænke os at rive det lille toilet ned ved entreen og lave en kombi- bryggers/ entré og så bygge et bad med tilhørende soveværelse i højre hjørne, hvor der i dag er et disponibelt rum med udgang til det fri fra spisekøkkenet.

Vi har et langbord og et rundt spisebord, som vi gerne vil have plads til, - det runde som hverdags plads ved køkkenet og det lange i stuen.

Mange hilsener håndværkerne.

Hej håndværkere.

Jeg har tegnet jeres eget forslag op, så det er nemt at sammenligne de tre indretninger.

Jeres forslag er udmærket, men jeg synes at der samlet går for meget plads til de to spisepladser, - det er på bekostning af jeres opholdsstue og køkkenpladsen bliver også mørk dér midt i huset også selvom I ofrer et par ovenlys, som jeg har stiplet ind på skitsen.

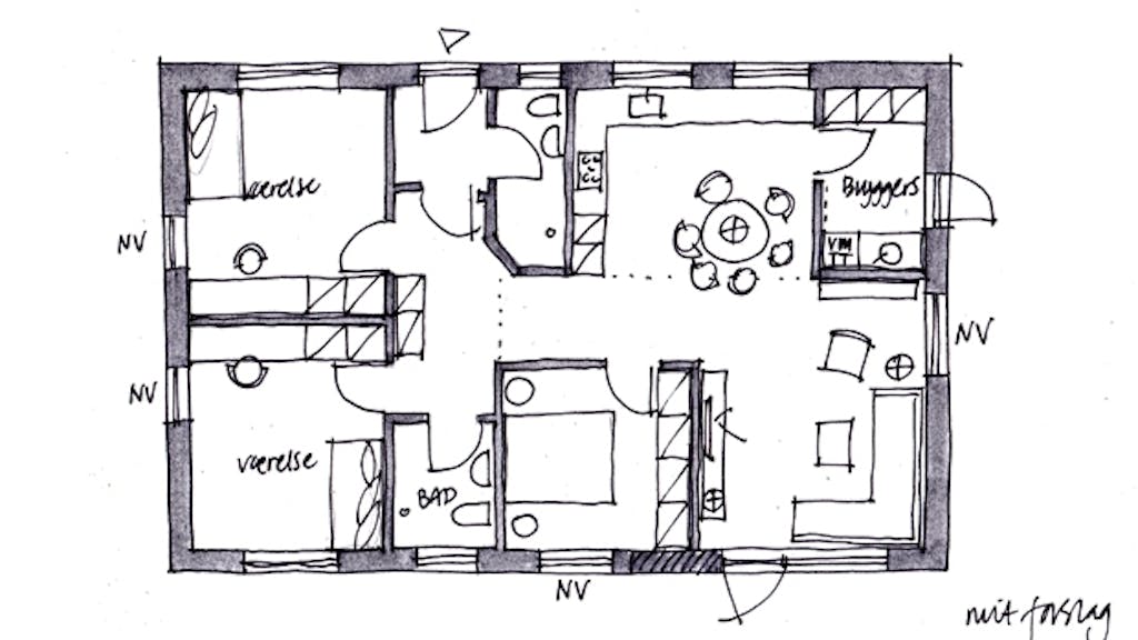
På skitsen med mit første forslag, har jeg lagt soveværelset ved siden af det ekst. bad og udvidet det ekst. gæstetoilet med en god bruseplads, så huset er fremtidssikret hvad morgentravlhed angår.

Bryggerset er lagt i hjørnet af et større køkken hvor der er plads til det runde spisebord og endelig er der blevet et godt hjørne til jeres opholdsstue.

Det sidste forslag er med en tilbygning på brutto 31,5 m2, hvor jeres forældreafdeling ligger. Det giver plads til et gennemgangsbryggers fra entreen, et dejlig rummeligt køkken med en halvø og en halv væg der adskiller køkken-spisepladsen fra resten af opholdsarealet med sofagruppe og det lange spisebord.

Stiplingerne angiver den eksisterende væg-placering og I skal endelig have en rådgiver ind over for at beregne hvor meget I kan fjerne.

Mange hilsener Lone