Ombygning af ældre villa
© Simon Colbing / EyeEm

BREVKASSE Hvordan renoverer vi vores nye hus fra 1930 og får plads til familien på 5?

Catrine og Thomas har valgt at skifte deres nybyg ud med en ældre villa fra 30'erne. Det har forvoldt dem en del praktiske problemer, som de nu søger rådgivning til.

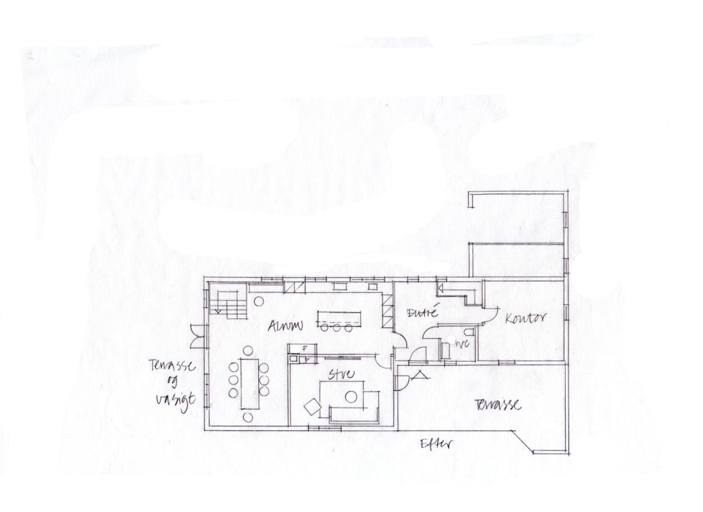
Plantegning nu
© Lone Barslund

Kære Catrine og Thomas

Tillykke med det dejlige, rummelige hus med masser af periodens charme.

Det lyder som en rigtig god idé at kunne komme direkte fra entré til alrum, så flytning af bryggerset lyder fornuftigt.

Kælderadgangen er lidt svær at tyde, sikkert fordi den er gammel og kringlet, så her vil jeg foreslå, at I ændrer på trappen, så der bliver nem adgang til kælderen fra entreen i stedet for det lille, nuværende aflukke. En ny trappe vil samtidig gøre det muligt at få et stort ugeneret kontor ud af den eksterne entré og viktualierum, som også står på jeres ønskeliste.

Samtidig er det ikke noget problem med placeringen af gæstetoilettet, det ligger prima i entréen med lidt afstand til køkkenet. Hoveddøren erstatter det eksisterende vindue, mens I kan sætte en ny terrassedør i ved den oprindelige entré.

For at få det ønskede, store køkken alrum med udsigt igennem huset, slår I væggen ned imellem køkken og stue, så køkkenet kan forlænges den vej. Samtidig byttes der rundt på alrum og stuen i gavlen, så spisepladsen rykker ud mod terrassen og jeres nye tv- og opholdsstue indrettes i hjørnet, hvor I så lukker af ud mod køkkenet. Dermed får I et roligt rum, hvor man kan trække sig tilbage i sofaerne til læsning og tv.

Trappen til førstesalens fælles repos står jo lidt uheldigt i forhold til den ønskede udsigt, men det kan løses ved at vælge en let og mere ”gennemsigtig” model og eventuelt isætte et nyt vinduesparti magen til det på modsatte side af terrassedørene.

Hvis I vil have plads til en ø, kan I ændre brændeovnen til en indbygningsmodel, så der bliver god plads at passere på. Den kan laves dobbelt, så I får glæde af den i opholdsstuen også.

Rigtig god ombygning.

Mange hilsner
Lone Barslund

Plantegning efter
© Lone Barslund

LÆS OGSÅ