BREVKASSE Arkitektens bedste råd til "drømmehyblen"
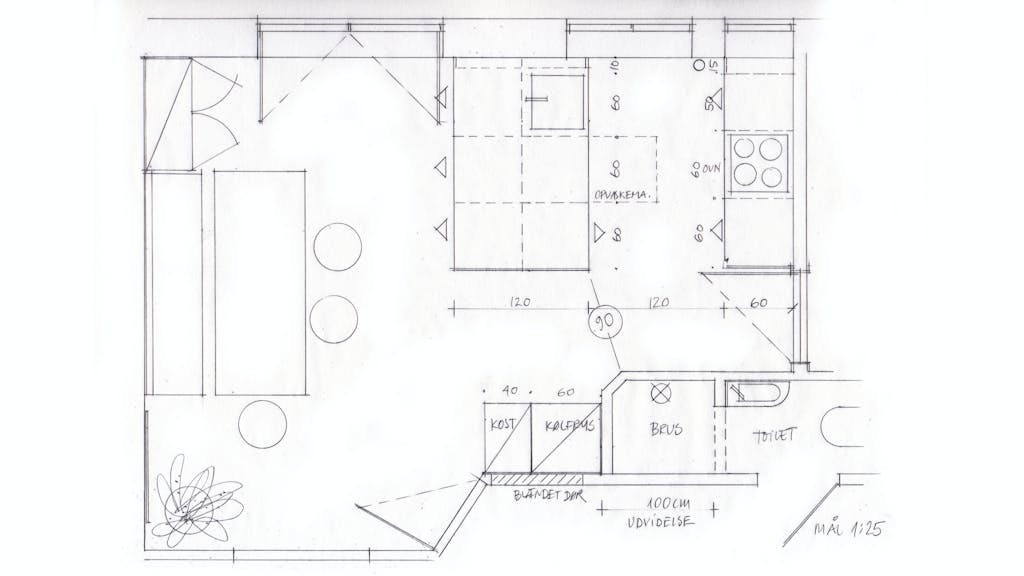
"Lejligheden er i meget dårlig stand og jeg er derfor i gang med at rive alt ned." Nu skal drømmelejligheden sættes i stand.
AfLone Barslund
"Lejligheden er i meget dårlig stand og jeg er derfor i gang med at rive alt ned." Nu skal drømmelejligheden sættes i stand.
Af