Se typehuset, der fik en opgradering

Børnefamilien skabte en luksusudgave af typehuset i mursten – med nogle ekstra kvadratmeter.

© Martin Dyrløv

Familien gik efter det helt enkle design i køkkenet og valgte et hvidt JKE-køkken med grebsløse elskuffer og en ultratynd bordplade i stål. Taburetterne og lamperne er fra Design By Us.

Arkitektens typehus

Børnefamilien faldt prompte for arkitekt Werner Mathies’ hus og fik bygget deres egen luksusudgave i mursten og med nogle ekstra kvadratmeter. Især husets enkle linjer tiltalte dem, og de nyder nu hver dag at komme hjem til et hus fuld af lys, luft og varme.

© Martin Dyrløv

Husets glasfacade mod haven i tusmørke. Længehuset er en opgraderet udgave af arkitekt Werner Mathies typehus.

Flot overgang mellem ude og inde

Egentlig er det nybyggede hus på villavejen to huse i ét. Ud mod vejen er det et gedigent murstenshus med små vinduer, der signalerer privathed, men straks hoveddøren åbnes, kommer et helt andet hus til syne. Vi træder ind i et kæmpe rum, der går fra den ene ende af huset til den anden.

Lyset strømmer ind både fra oven fra seks ovenlysvinduer og fra den gennemgående glasfacade, hvor der er udsigt til både himmel og have. Udenfor er der anlagt en terrasse i hårdt træ i hele husets længde, så her har vi i den grad det, som boligejere i dag efterspørger: en let og nærmest usynlig overgang mellem inde og ude – mellem stuerne og haven.

Se flere billeder fra huset hos Danske BoligArkitekter.

© Martin Dyrløv

Familien faldt især for lysindfaldet i huset samt dets enkle og rene linjer, der giver gode og lange kig ned gennem huset.

Tegnet af Werner Mathies

Huset er tegnet af Werner Mathies, der er tilknyttet Danske BoligArkitekter, og indtil videre er der opført 14 af slagsen rundt om i Danmark. Den første udgave blev allerede bygget i 2006 i forbindelse med boligudstillingen Fremtidens Parcelhuse i Herfølge og var et af de første svanemærkede lavenergihuse herhjemme. Men det var først flere år efter, da Stefan og Louise skulle i gang med at bygge deres eget hus, at de fandt ud af, at det netop var sådan et hus, de drømte om.

Parret havde fået datter nummer tre, og deres gamle hus var blevet for trangt, men det var svært at bygge til. Heldigvis lå huset på en stor grund, der kunne udstykkes i to, så de besluttede at sælge og bygge et nyt hus på den nyudstykkede grund ved siden af. Men hvilket hus?

– Vi så på mange typehuse og var frustrerede over, at vi ikke kunne finde det rigtige. Men da vi besøgte Werner Mathies’ hus, var vi ikke mere i tvivl, fortæller Stefan, der som ejendomsmægler ser en del huse og derfor måske også er lidt mere kræsen end gennemsnittet.

© Martin Dyrløv

Fra køkkenet er der både adgang til et bryggers og til haven. Familien har prioriteret at have masser af skabsplads i køkkenet og resten af huset. I alt tæller huset 32 højskabe.

En funktionel planløsning

Huset her havde præcis det, som familien ledte efter: enkelhed, rene linjer, masser af lys og funktionel planløsning.

Huset er groft sagt bygget op i to dele adskilt af en væg med dybe nicher, som arkitekten kalder en ”fortættet ryg”, hvor størstedelen af husets skabe er indbygget. Til den åbne side mod haven er det lange rum med køkken, spisestue, opholdsstue og arbejdsværelse delvis adskilt af rumdelere. Mellem køkken og spiseplads er det for eksempel en stor skabssektion, og mellem spise- og opholdsstue er det en muret dobbeltsidet brændeovn, der bryder det lange rum. Til den lukkede side mod gaden ligger værelserne på rad og række som små huler.

Kig indenfor i arkitekternes egne boliger.

© Martin Dyrløv

Den murede dobbeltsidede brændeovn fungerer som rumdeler mellem spiseafdelingen og opholdsstuen. Gynge¬stolen af Kristian Illum Wikkelsø er et arvestykke, som er blevet sortmalet. Lampen AJ er fra Louis Poulsen. Huset er på 219 m² og varmes op for ca. 11.000 kr. om året. Oven på brændeovnen troner en udstoppet ravn, købt hos SalkaValka i Nykøbing Sjælland.

"Huset fungerer perfekt for os"

Selv om huset er et arkitekttegnet typehus, valgte familien deres egen ”håndlavede” udgave og fik det bygget op fra grun¬den på stedet. Med sine 219 m² er huset større end grundmodellen, og familien har ønsket en murstensfacade, som der heller ikke er på Werner Mathies’ oprindelige hus.

– Huset fungerer perfekt for os, og vi glæder os over det hver eneste dag. Jeg tror, at vi altid vil synes, at det er et fedt hus. Det er langtidsholdbart på en anden måde, end hvis vi havde købt et traditionelt typehus. Det er lidt ligesom at købe en Wegner-stol – man bliver aldrig træt af den, siger Stefan Skafdrup.

Se flere af arkitekt Werner Mathies’ projekter her.

© Martin Dyrløv

Garderoben, der hører til entréen, er integreret i den skabsvæg, som adskiller køkken og spisestue.

© Martin Dyrløv

I det store rum med bl.a. opholdsstuen er der masser af gulvplads. Generelt er der meget lidt spildplads i huset, hvor gangarealerne er integreret i husets store opholdsrum. En række af ovenlysvinduer sikrer et smukt lysindfald i det langstrakte rum.

© Martin Dyrløv

Forskellen på husets to facader er markant. Mens huset er mere tillukket ud mod villavejen, åbner det sig op ud mod haven med én stor glasfacade og en bred, overdækket terrasse i hele husets længde. På den langstrakte terrasse leves livet en stor del af året. Det store udhæng er udregnet nøjagtigt, så det lukker solen ind om vinteren, men beskytter mod overophedning om sommeren.

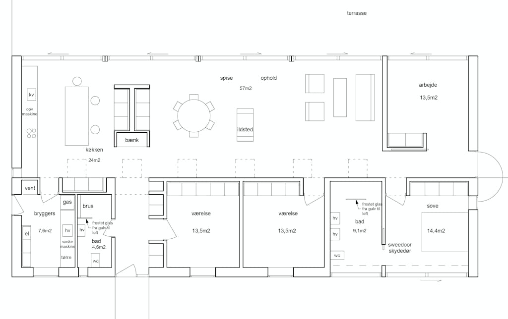
© Danske Boligarkitekter

Huset er groft sagt bygget op i to dele adskilt af en væg med dybe nicher, som arkitekten kalder en ”fortættet ryg”, hvor størstedelen af husets skabe er indbygget. Til den åbne side mod haven er det lange rum med køkken, spisestue, opholdsstue og arbejdsværelse delvis adskilt af rumdelere. Til den mere lukkede side mod nord ligger værelserne på rad og række som små huler.

Fakta om huset:

Arkitekt: Werner Mathies.

Størrelse: 219 m2.

Type: Ét plan med ensidig taghældning.

Proces: Huset er et arkitekttegnet typehus, som familien har modificeret og opgraderet til en særlig luksusudgave, der er bygget på stedet. Men man kan også bestille Werner Mathies’ hus som et elementbyg¬geri, hvor vægelementerne kommer færdige direkte fra fabrik.

Materialer udvendigt: Facaden er en trækonstruktion med skalmur af Kolumba-tegl fra Petersen Tegl. Vinduer og skydedørspartier med tre lag glas fra Pro Tec. Tagbelægning er tagpap.

Materialer indvendigt: Plankegulve i douglasgran fra Danish Hardwood. Køkken med elskuffer og 6 mm massiv stålbordplade fra JKE Design. Hvidevarer fra ATAG.

Energi: Naturgasfyr og varmegenvindingsanlæg fra Genvex. Der er gulvvarme i hele huset.

Arkitekthonorar: ca. 100.000 kr.

Byggepris: ca. 17.500 kr. pr. m2 inkl. arkitekthonorar

Danske BoligArkitekter

Denne boligreportage er blevet til i samarbejde med Danske BoligArkitekter. Gå på opdagelse blandt de flere hundrede projekter, der alle er beskrevet og illustreret på danskeboligarkitekter.dk. Danske BoligArkitekter er en ordning med flere end 100 selvstændige arkitekter over hele landet, der alle har dokumenteret erfaring fra byggeprojekter for private boligejere. Medlemmerne er uddannet indenfor energioptimering af boliger eller kan dokumentere en tilsvarende viden. Alle medlemmer er dækket af Danske BoligArkitekters særlige ansvarsforsikring, der også dækker rådgiveransvar, selvom arkitekten lukker sin virksomhed. Læs mere om Danske Boligarkitekter, og se flere boliger, på www.danskeboligarkitekter.dk.