
Hvordan får vi plads til den store familie i et lille parcelhus?
Familien Bergholt bor i et lille parcelhus, hvor der pt ikke er plads til at alle børnene har deres eget værelse. Vores indretningsekspert giver dem sine bedste råd her.
AfKære BO BEDRE,
Med inspiration fra jeres tips til indretning tyer vi nu til jeres input til, hvordan vi bedst kan optimere pladsen i vores hus.
Vi er en familie på 5 – 2 voksne, 2 drenge på 9 år og en pige på næsten 7 år. Vi bor i et dejligt parcelhus på 127 kvm, godt placeret i forhold til venner, familie, fritid m.v. Huset blev købt tilbage i 2005, hvor der ingen børn var og forventningen var nok et par børn, hvilket huset kunne rumme. Men efterhånden som børnene bliver ældre, bliver pladsen også udfordret. Vores drenge deler pt. værelse, men vi har behov for at skille dem ad så alle børn har deres eget.
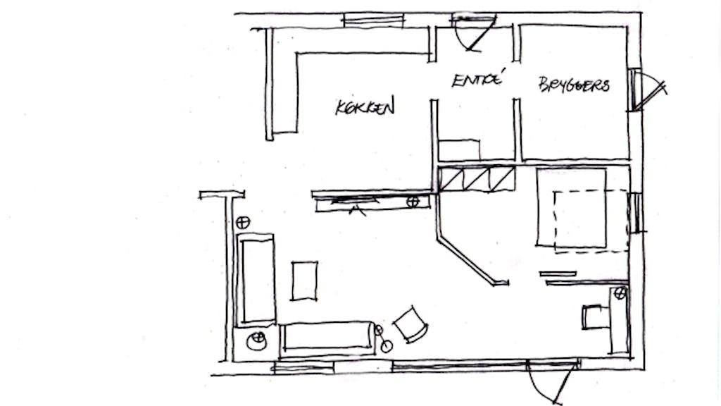
Vi renoverede huset i 2008 med nye vinduer og døre, nyt badeværelse og nyt bryggers/entré, så disse rum vil vi helst undlade at røre ved. I denne proces nedlagde vi husets oprindelige entré og indrettede et lille kontor på knapt 4 kvm, hvilket vi har behov for. Det tidligere bryggers på 6 kvm blev vores nye entré og et værelse bag det oprindelige bryggers blev et nyt bryggers med vaskemuligheder og masser af opbevaring.
Vores økonomi er ikke til at kunne udvide huset til trods for at det er vores højeste ønske, og samtidig er vi også begrænsede i forhold til, hvor mange penge vi kan putte i et projekt. Vores udfordring er altså at skabe et ekstra værelse i de kvadratmeter, vi har til rådighed, men så økonomisk som muligt.
Umiddelbart ser vi kun at stuen kan gøres mindre for at give et ekstra værelse, men den ”rigtige” ide hertil, ved vi ikke om vi har. Ej heller om der er muligheder, som vi ikke har set.
Vi har tænkt gennem længere tid og håber nu at I kan være med til at inspirere os og sætte et par streger på plantegningen, der kan give os det sidste til at vi ser, hvordan vi skal gribe det an.
Mange hilsner fra familien Bergholt







