Den hvide firkant på bakken i Birkerød

På en bakketop i et gammelt villakvarter blev et ældre hus revet ned for at give plads til et nyt, hvor arkitekten fik frie hænder. Resultatet blev et hus med stramme linjer og højloftede rum. Et sted, hvor store og små elsker at bo og lege.

Den hvide firkant - enkel og udsøgt
© Martin Dyrløv

─ Jeg fornemmede hurtigt, at her kunne vi bygge noget meget enkelt og kompromisløst med rene linjer og stramme kompositioner, fortæller arkitekt Thue Krog Andersen fra Årstiderne Arkitekter og medlem af Danske Boligarkitekter.

Han behøvede ikke at være sammen med børnefamilien fra Nordsjælland ret længe i deres daværende hjem, før han havde en klar opfattelse af, hvad det var for et hus, de drømte om at bygge.

Derfor ligger der i dag en lysende, hvid firkant af et hus, som ud mod vejen er tillukket, men som på den anden side mod haven åbner sig med et kæmpestort vinduesparti. En moderniseret udgave af et klassisk funkishus.

─ Men ikke kold minimalisme, understreger Thue Krog Andersen, da han viser huset frem sammen med den kvindelige halvdel af ejerparret.

Før det hvide hus blev en realitet, lå her et hus bygget engang i 50’erne. Parret forelskede sig – ikke i huset, men i dets beliggenhed. Grunden lå perfekt på en bakke i det ældre, charmerende villakvarter.

Problemet var blot, at huset slet ikke var til salg. Men de tog chancen, bankede på og spurgte den over 100 år gamle ejer, om han var interesseret i at sælge.

Og heldet var med dem, for den gamle mand overvejede faktisk at sælge inden for det næste halve år. Kontakten var etableret, drøftelserne fortsatte, og handlen blev til sidst ordnet privat. Parret var ikke i tvivl om, at deres nye hus skulle tegnes af en arkitekt. Spørgsmålet var hvilken.

Svaret fandt de på en af nabogrundene, hvor ejerne også skulle i gang med at bygge hus, og det så interessant ud.

Se flere billeder fra dette hus hos Danske BoligArkitekter her.

BILLEDE Så enkelt kan det gøres. En hvid firkant i to etager, der trods sin stramme stil også er et hus, der på det praktiske og funktionelle plan lever op til en moderne families krav.

Hvide og stramme linjer
© Martin Dyrløv

─ Vi tjekkede Årstiderne Arkitekter på nettet og kiggede nærmere på visualiseringerne af nabohuset og nogle af deres andre byggerier. Det var netop den stil, som vi gik efter, og på den måde fandt vi vores arkitekt. Thue læste os godt allerede på det første møde, og vi har under hele processen følt os trygge ved ham. Der er en god kemi mellem os, og det betyder altså meget, når man skal samarbejde med en arkitekt om at bygge ens fremtidige hjem, fortæller husejeren.

Thue Krog Andersen understreger, at det for en arkitekt er meget vigtigt fra starten at forstå de mennesker, som man skal arbejde for.

─ At tegne menneskers kommende hjem kan sammenlignes med, når du bestiller en jakke hos en skrædder. Først udveksler man idéer, så syr man og prøver, om jakken sidder som den skal. Dernæst retter man til, og sikrer at jakken sidder perfekt. På samme måde skal et arkitekttegnet hus opfylde ejernes behov og i sidste ende være en forlængelse af dem og deres drømme.

På grund af beliggenheden på bakken i det kuperede villakvarter var det oplagt at bygge i to plan. Det ville give både et flot udsyn og masser af lys. Arkitekten havde nemlig ved selvsyn konstateret fra et beskedent tagvindue i det gamle hus, at der var masser at hente her.

Og da ejerne sætter pris på højloftede rum, blev løsningen et køkkenalrum i dobbelthøjde, mens opholdsstuen blev placeret på 1. sal. Herfra kan man stå som på en kommandobro og skue ned over køkkenalrummet og ud i haven gennem det gigantiske vinduesparti og videre til det smukke, gamle bøgetræ i haven.

Se flere af arkitekt Thue Krogs Andersens projekter her.

BILLEDE Køkken-alrummetfår lys fra flere sider. Oven over køkkensektionen ligger opholdsstuen, mens der i spiseafdelingen er dobbelthøjt rum. De hvide og stramme linjer i rummet blødes op af trægulvet og den specielle bordplade i Pietra di Fossena-marmor.

Køkken-alrum med højt til loftet
© Martin Dyrløv

Selvom det højloftede køkken-alrum er husets ubestridte centrum og der, familien opholder sig mest, bliver stuen på førtesal også brugt flittigt.

  • Når vi er os selv, er det her vi går op om aftenen, når børnene er lagt i seng. Og har vi gæster, sætter vi os typisk herop, og nyder roen, mens børnene måske sidder nedenunder i børneafdelingen og ser film. Det er fint tænkt, at huset giver plads til så mange forskellige aktiviteter på samme tid. Jeg har bemærket, at børnenes kammerater er ellevilde, når de er her. De siger, at det er et godt hus at lege i, fortæller ejeren.

Og et bedre skudsmål kan man næppe give et hus: Et godt sted både at leve og lege.

BILLEDE Køkken-alrummeter et storslået rum med 5,5 meter til loftet og et kæmpe vinduesparti med skydedøre ud mod den gamle villahave. Pendlerne Random Light er fra hollandske Moooi. Kunst på væggen af Lillan Lerche.

Lav mad med fantastisk udsigt
© Martin Dyrløv

Arkitektenhar fået det bedste ud af husets beliggenhed på en bakketop. Det oplever man blandt andet i køkkenet, hvor man kan nyde den fantastiske udsigt over det bakkede terræn, mens man laver mad. Familien fravalgte massive trægulve til fordel for lamelplankegulve i hvidolieret eg, der har samme slidlag, som et massivt plankegulv.

Den smukke trappe
© Martin Dyrløv

Indgangspartiet med den smukke trappe til første­salen. Her er der blevet plads til en lille niche med bænk og knager til overtøjet.

Opholdstuen bliver flittigt brugt
© Martin Dyrløv

Selv om opholdsstuenligger på 1. sal, bliver den brugt meget. De udvendige rulle­gardiner lægger en dæmper på det stærke sollys og forhindrer overophedning.

Ovenlys og designer stol
© Martin Dyrløv

På 1. sal er der et lille gennemgangsrum, hvor der er blevet plads til en Wegner-stol og et kunstværk af Marlene Cohr. Et ovenlysvindue sørger for, at rummet altid er velbelyst.

Enkelt soveværelse med udsigt
© Martin Dyrløv

Soveværelset er indrettet enkelt, næsten spartansk. Det brede vindue er i sig selv et billede på væggen sammen med maleriet af Marlene Cohr.

Fakta om huset:

Arkitekt: Thue Krog Andersen, Årstiderne Arkitekter.

Størrelse: 230 m2 plus 50 m2 carport.

Type:To fulde plan med fladt tag.

Proces:Arkitekten har stået for skitse- og myndighedsprojekt, projektering og haveplan. Familien hyrede byggeleder Per Andersen fra A + R Bygherrerådgivning, som har styret alle entrepriser og holdt øko­nomien i kort snor. Det betød, at både budget og tidsplan blev overholdt.

Materialer udvendigt: Huset er konstrueret af betonelementer, der udvendigt er beklædt med isolerings­batts og hvid, indfarvet puds. Taget er beklædt med tagpap, vinduer fra Velfac og ovenlys fra Vitral.

Materialer indvendigt: Plank-gulve fra Norparquet. Lofter er behandlet med akustikpuds, der forbedrer lyd­forholdene i huset. Køkkenet er byg­get af Søren Risvang fra SR Snedkeri. Fliserne på badeværelserne hedder Sicili og er fra Flise Design.

Energi:Gasfyr og Genvex-anlæg, der sørger for ventilation og ensartede temperaturer i hele huset.

Arkitekthonorar: ca. 75.000 kr.

Byggepris:ca. 18.000 kr. pr. m2

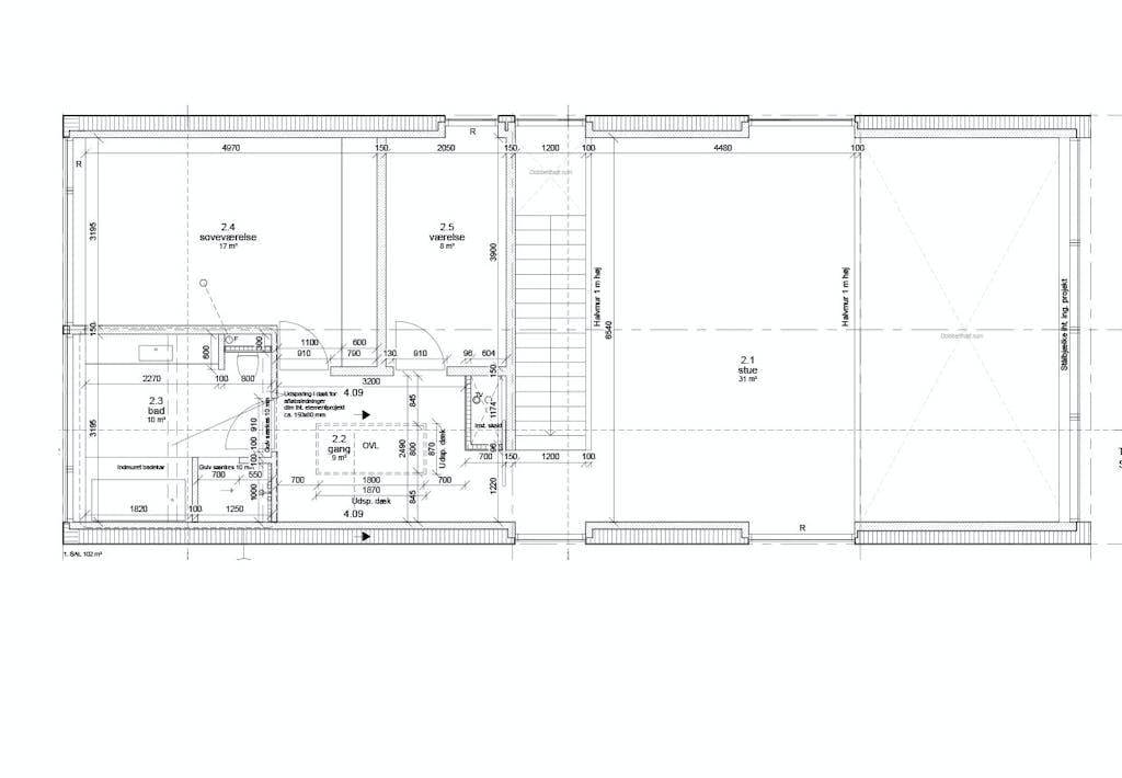
Plantegning stueetage

Huset er kun syv meter i bredden, men bygget i to fulde planer. Stueplanet indeholder børneafdeling, fælles køkken-alrum, bryggers og teknikrum. Førstesal er indrettet som forældrezone med dagligstue, soveværelse og wellness-rum.

Plantegning 1. sal
Fakta om Danske BoligArkitekter

Denne boligreportage er blevet til i samarbejde med Danske BoligArkitekter. Gå på opdagelse blandt de flere hundrede projekter, der alle er beskrevet, ved at gå ind på danskeboligarkitekter.dk. Danske BoligArkitekter er en ordning med flere end 100 selvstændige arkitekter over hele landet, der alle har dokumenteret erfaring fra byggeprojekter for private boligejere. Medlemmerne er uddannet indenfor energioptimering af boliger eller kan dokumentere en tilsvarende viden. Alle medlemmer har dækning gennem Danske BoligArkitekters særlige ansvarsforsikring, der også dækker rådgiveransvar, selvom arkitekten lukker sin virksomhed.