Arkitekttegnet passivhus ved Hornbæk Sø

Familien Thrane-Nielsen havde fundet den perfekte grund lige ned til Hornbæk Sø. Se deres passivhus med velovervejede arkitektoniske løsninger og fokus på naturlige, langtidsholdbare og vedligeholdelsesfrie materialer.

Moderne passivhus med en skøn beliggenhed
© Andreas Mikkel Hansen

Det var beliggenheden der trak, da Sofie og Peter købte en attraktiv grund i første række til Hornbæk Sø. Senere fik de kontakt til et byggefirma og arkitekt Karina Søgaard MAA partner i Novaform Arkitekterne, der begge har specialiseret sig i at bygge og tegne lavenergi- og passivhuse. Passivhus betyder, at du ikke tilfører energi til huset, men bruger den varme, som du selv producerer via fx kropsvarme, madlavning og brusebade. Varmen genbruges ved hjælp af et såkaldt varmegenvindingsanlæg, der recirkulerer luften i huset og sikrer en konstant, jævn temperatur. Sofie og Peter fik med hjælp fra arkitekten tegnet et hus på 165 m² med dynamisk vrid i arkitekturen og fokus på naturlige, langtidsholdbare og vedligeholdelsesfrie materialer. Passivhuset i Hornbæk har udover de åbenlyse arkitektoniske kvaliteter lave driftsomkostningerne til varmt vand, varme og el. Penge, der i stedet bliver brugt til afdrag på lån i huset hver måned.

Se mere fra denne bolig hos Danske BoligArkitekter.

BILLEDE Fra syd er det tydeligt at se, hvor integreret en del af arkitekturen den overdækkede terrasse er. Ejerne er havemennesker og har derfor valgt at trække bedene helt op foran vinduerne, så de ser på planter i stedet for græs.

Hus i Hornbæk med gode uderum
© Andreas Mikkel Hansen

Huset er udformet som to forskudte kasser, der danner nogle gode uderum, som ligger i naturlig og tæt forbindelse med opholdsrummene indenfor. Det forskudte element gør også, at huset ikke bliver forudsigeligt, men har kroge med oplevelser både inde og ude. Carport og skur danner den tredje kasse, som markerer indgangen til boligen og skærmer mod morgenterrassen ud fra køkkensiden, så denne er mere privat fra vejen.

– Familien har fået bygget et passivhus på 165 m², som har et meget lavt månedligt forbrug af el og varme. Et smart byggesystem, hvor de højisolerede ydervægge kun er 30 cm tykke, gør endvidere, at du i forhold til traditionelle isolerings- og byggemetoder sparer mange kvadratmeter. Hos Sofie og Peter har det givet 7-8 m² ekstra i grundplanen, forklarer Karina Søgaard.

Familiehjem med lavt varmeregnskab

Familiens samlede forbrug til varme og varmt vand er på knap 3.000 kr. årligt, hvilket er en besparelse på ca. 20.000 kr. årligt i forhold til, hvad en familie i et tilsvarende hus bruger. Her sørger solceller endvidere for, at det årlige forbrug kun ligger på 3.000 kr. Dét regnskab betyder, at du grundet de færre driftsomkostninger får et større rådighedsbeløb til at afdrage lån.

– Og dét gør faktisk, at du kan låne en million mere til at bygge for. Når du genbruger vand og varme og har isoleret optimalt, så kommer du med andre ord til at bo for dine penge i stedet for at hælde dem i kloakken. Du kan regulere graden af dit genbrug og dermed graden af besparelse, men du kan ikke regulere huspriserne, og det er et regnskab som bankerne kan forstå, fortæller Karina Søgaard.

Se flere af arkitekt Karina Søggards projekter her.

BILLEDE Ventilationshullerne, der indgår i hele genvindingsanlægget sidder diskret i lofterne. Den douce, lysegrønne farve fra Flügger skaber sammenhæng med den frodige have. Lænestolene er fra Fritz Hansen.

Fakta om passivhuset i Hornbæk
© Andreas Mikkel Hansen

Arkitekt: Karina Søgaard, arkitekt MAA og partner i Novaform Arkitekterne.

Husets størrelse: 165 m².

Processen: Familien fik via byggefirmaet Future House kontakt til arkitekt Karina Søgaard MAA, der er specialist i passivhuse. Gennem dialog med Sofie og Peter lavede hun et skitseforslag, fik myndighedsgodkendelser og stod for kontakten til Future House, der havde totalentreprisen.

Materialevalg: Bæredygtige og langtidsholdbare materialer bl.a. facadebeklædning af ubehandlet cedertræ, skifer og zink, 3-lags vinduer, betonfliser, hårdt træ på terrassedæk.

Energi: Huset er bygget efter passivhus-standarder og har bl.a. genveksanlæg, mekanisk solafskærmning, der forhindrer overophedning samt regnvandsopsamler toiletter, ved tøjvask og havevanding. Solceller på taget.

Byggepris: ca. 2.600.000 mio. kr., heraf arkitekthonorar på 75.000 kr., og 45.000 kr. til projekteringsfase, hvor Karina Søgaard lavede konstruktionssnit, kloakplan og plan over fundamentet. ­

BILLEDE De fleste af boligens 165 m² går til et stort opholdsrum, hvor der er blevet plads til køkken, to sofaarrangementer og en spiseafdeling. Fra alle sidde- og ståpladser i rummet er der frit udsyn til haven og søen. Den ekstra sofakrog ved siden af køkkenet kan hurtigt omdannes til et ekstra børneværelse, hvis familien får behov for det.

Lyst køkken med skabe fra Kvik
© Andreas Mikkel Hansen

Køkkenalrummet ligger i åben forbindelse med dagligstuen og har dobbelte terrassedøre med udgang til en morgenterrasse. De hvide grebsløse elementer er fra Kvik.

Soveværelse i rolige nuancer og mørke gardiner
© Andreas Mikkel Hansen

Når du sover dannes der fugt, og her justerer genvindingsanlægget luften, så huset hele tiden er tilpas tørt. Udover de mørke gardiner til at tage lyset om aftenen og morgenen er der monteret mekanisk styrede screens udenpå vinduerne, så rummene ikke bliver varmet for meget op om sommeren.

Badeværelse med vask og bad fra Bad & Stil
© Andreas Mikkel Hansen

Fliserne fra Helsingør Flisecenter er støbt, slebet beton, der ligner natursten. Badekar og vaskemøbel er fra Bad & Stil. Luftcirkulationen i huset er så god, at der selv på badeværelset ikke kommer dug på spejlet efter endt brusning.

Fantastisk terrasse med grønne planter
© Andreas Mikkel Hansen

Den overdækkede terrasse er rent arkitektonisk og indretningsmæssigt prioriteret lige så højt som de indendørs rum. Dækket er udført i slidstærkt, hårdt træ, mens skifer er sat op på muren for at bryde med cedertræet, der ellers dækker resten af husets facade.

Havemøbler i rattan på terrassen
© Andreas Mikkel Hansen

Det er ikke kun husets materialer, der er vedligeholdelsesfrie og vejrbestandige. Det gælder også havemøblerne, der blandt andet tæller de to lænestole i rattan.

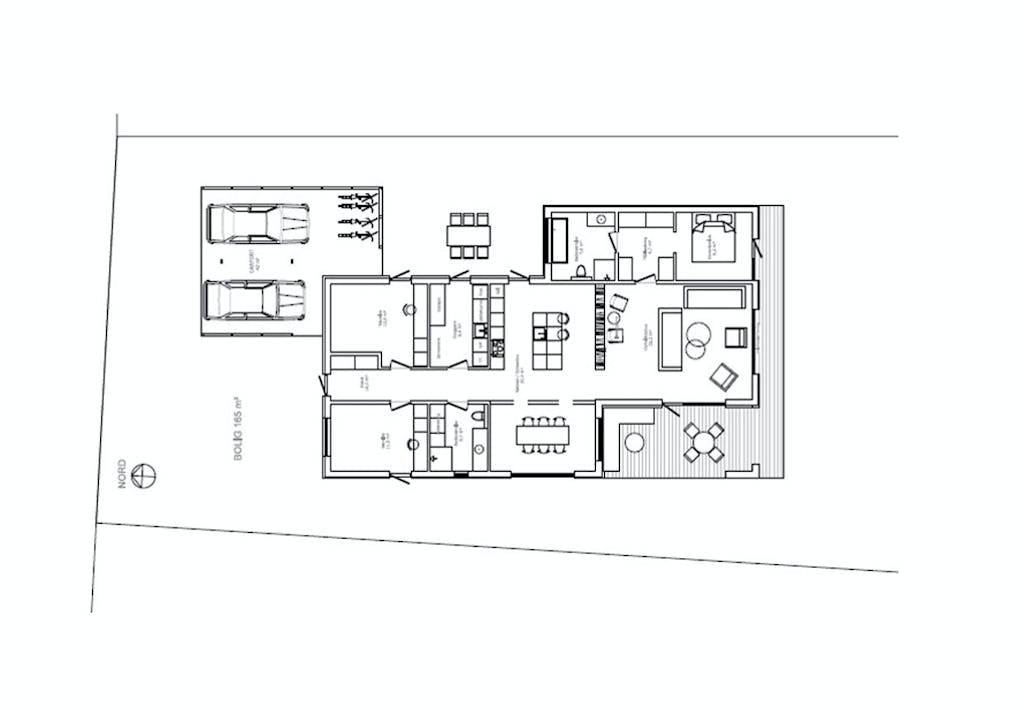
Plantegning af passivhuset i Hornbæk
Fakta om Danske BoligArkitekter

Denne boligreportage er blevet til i samarbejde med Danske BoligArkitekter. Gå på opdagelse blandt de flere hundrede projekter, der alle er beskrevet, ved at gå ind pådanskeboligarkitekter.dk. Danske BoligArkitekter er en ordning med flere end 100 selvstændige arkitekter over hele landet, der alle har dokumenteret erfaring fra byggeprojekter for private boligejere. Medlemmerne er uddannet indenfor energioptimering af boliger eller kan dokumentere en tilsvarende viden. Alle medlemmer har dækning gennem Danske BoligArkitekters særlige ansvarsforsikring, der også dækker rådgiveransvar, selvom arkitekten lukker sin virksomhed.