”Vi er seks i familien, og vi er meget sammen.”

BO BEDREs indretningsekspert Lone Barslund giver to forslag til denne familie. De er kørt fast i indretningen af deres hus, hvor der skal være plads til seks familiemedlemmer.

Hej BO BEDRE,

Vi er kørt fast med ideer til indretningen af vores hus.

Vi kunne godt tænke os et større bryggers. Vi tænkte, at vi kunne tage lidt fra køkkenet, som vi gerne vil have rykket ind i stuens vinkel, så vi får et åbent køkken-alrum og stue. Vi er seks i familien, og vi er meget sammen.

Den nuværende indgang kunne mures til og bruges til at udvide badeværelset med.

En fremtidsplan kunne være at bygge en overetage på, men er det bedre at bygge til?

Familien Hansen

Kære familien Hansen,

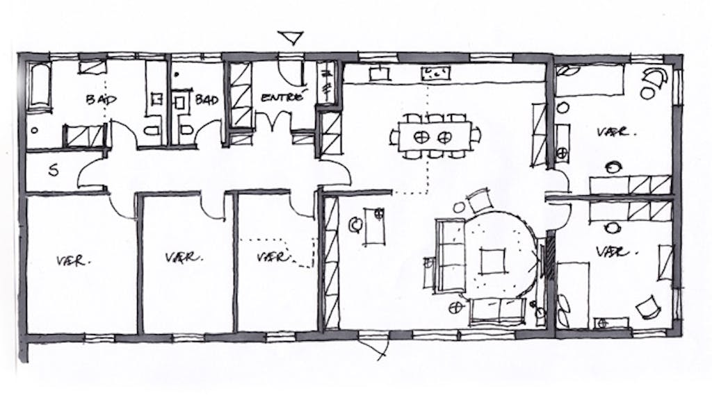
Hvis I har plads på grunden til det og den nødvendige afstand til skel, så ville jeg langt hellere bygge til i stueplan end at bygge ovenpå.

Sætter I et sadeltag på, bliver der en masse spildplads på grund af tagfladerne, der gør at rummene er svære at udnytte og øger I murene i højden plus et nyt sadeltag, så kan I få problemer med både højde og antal kvadratmeter i forhold til bebyggelsesprocent.

Kigger vi på planløsningen i stueplan, kan I nemt få det ønskede åbne køkken ved at vælte væggen ind til stuen. Jeg ville slå entré og bryggersfunktionen sammen i det eksisterende bryggers og på den måde få plads til to badeværelser i stedet for et stort. Med seks mennesker i familien må det være det optimale.

I entreen gemmes fjernvarmeunit og diverse installationer af vejen i et stort skab med skydedøre mens der på køkkensiden laves en ny vinklet væg, der rummer skabe i entreen og giver plads til kølfrys og ovnhøjskab på køkkensiden.

Opholdsstuen indrettes med opholdsafdeling og en lang reolvæg med et mindre skrivebord, - for at skabe lidt fred i stuen bevares en bid af den oprindelige væg.

Det mindste lille værelse udvides som vist ud i entreen i linje med de andre værelser, - her skal der altså beregnes nyt gulv.

Plan 1 giver jer således 4 værelser, dvs. der evt. bliver et deleværelse.

Plan 2 har fået en tilbygning med to værelser, så det er de 5 værelser, I skal bruge, samt et større badeværelse, idet det mindste værelse mod carport-siden er lagt til badeværelset.

Bedste hilsener Lone