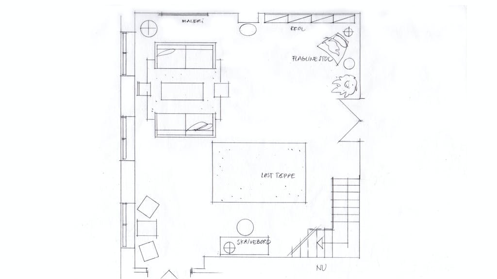
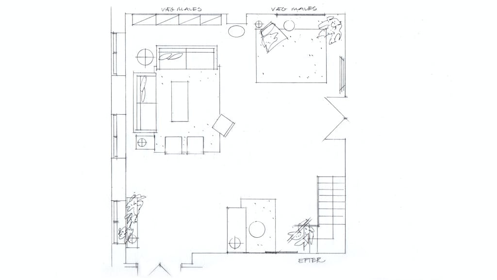
Udfordring: Hvordan gør man en stor stue hyggelig?
”Vi har forsøgt at inddele stuen i flere sektioner, men føler stadig, at man sidder i en kæmpe ’sal’ og ikke i en privat stue.” Arkitekten giver sine indretningstips.
AfLone Barslund
”Vi har forsøgt at inddele stuen i flere sektioner, men føler stadig, at man sidder i en kæmpe ’sal’ og ikke i en privat stue.” Arkitekten giver sine indretningstips.
Af