Parrets stue trænger til et nyt liv
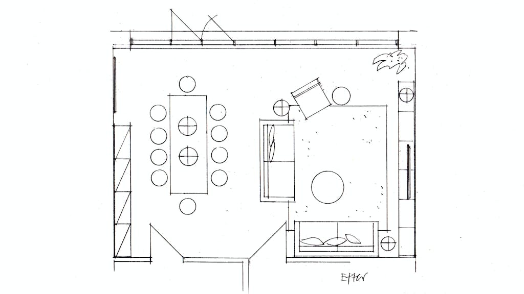
Arkitekten foreslår blandt andet at omrokere sofaerne på en særlig måde, da det vil gøre en væsentlig forskel i rummets udtryk.
AfLone Barslund
Arkitekten foreslår blandt andet at omrokere sofaerne på en særlig måde, da det vil gøre en væsentlig forskel i rummets udtryk.
Af