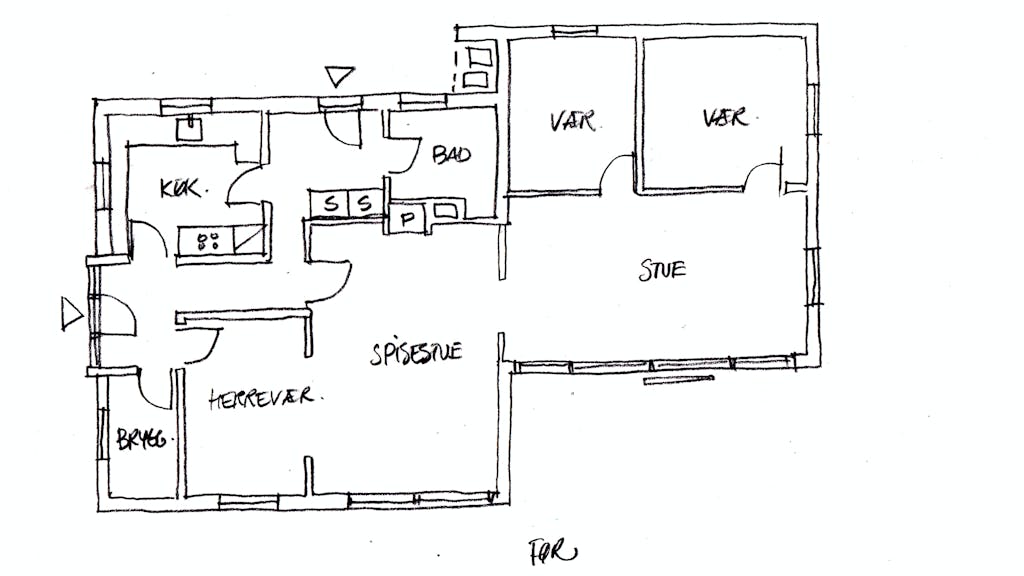
Vores nyanskaffede hus er ikke stort og i forhold til størrelsen er der en del spildplads, som vi gerne vil udnytte bedre. Vi regner derfor med at vi kan få et dejligt hjem ud af den plads, der nu engang er, med lidt omtanke og måske hjælp fra dig. Der er en bærende væg, som ikke kan flyttes, (markeret med skrå linjer), en lidt unødvendig baggang med masser af døre og næsten ingen vægplads til skabe og så et herreværelse i åben forbindelse med spisestuen.
Vi vil gerne have forslag til en bedre indretning med et større badeværelse med plads til kar og brus, tre værelser og meget gerne udnyttelse af de ”spildte” kvadratmetre. Vi kan tilføje at både bad og køkken er de oprindelige fra huset blev opført, så de står under alle omstændigheder til udskiftning. Bryggerset er småt men der er plads til vaskesøjle og overtøj, så det ændrer vi ikke. Vi håber meget at du får tid til at kikke på det.
Venligst Lone og Karl, Viborg
Hej Lone og Karl
I forhold til hvor meget fælles areal, I har i huset, med en forholdsmæssig rummelig stue og spisestue, så ville jeg flytte køkkenet over i biblioteket og bruge det nuværende køkken til det værelse som I mangler. Dernæst vil jeg foreslå at baggangens areal lægges til badeværelset, så I får meget mere plads og mulighed for at indrette med både badekar og bruseniche.
I skal lave en ny indgang til badeværelset fra fordelingsgangen, hvilket giver et lidt aflangt baderum, men hvis I placerer badekarret for enden, bliver dispositionen i rummet alligevel meget fin og harmonisk. Det nye køkken kobles på vand og afløb i bryggerset og kan blive et rigtig godt arbejdsrum med fin kontakt til spisestuen. Oven i købet får I sammenhængen med helt ”gratis”, da parketgulvene helt sikkert er de samme i begge rum allerede.
Der skal jo blændes et par døre, og opsættes ny dør til badeværelset, hvor I kan genanvende døren til herreværelset, hvilket I kan se på tegningen, og så skal der lægges nyt trægulv i det nye værelse, men ellers er den største udgift badeværelset, der skal have støbt nyt sammenhængende gulv ligesom der skal etableres nyt el både her og i køkkenet. Trods et mindre grundareal virker huset velindrettet og praktisk, så I bliver helt sikkert glade for at bo der.