Måske kunne vi være så heldige at få lidt hjælp til vores boligprojekt?
Vi har fået muligheden for at købe den andelslejlighed, der ligger i forlængelse af vores egen.
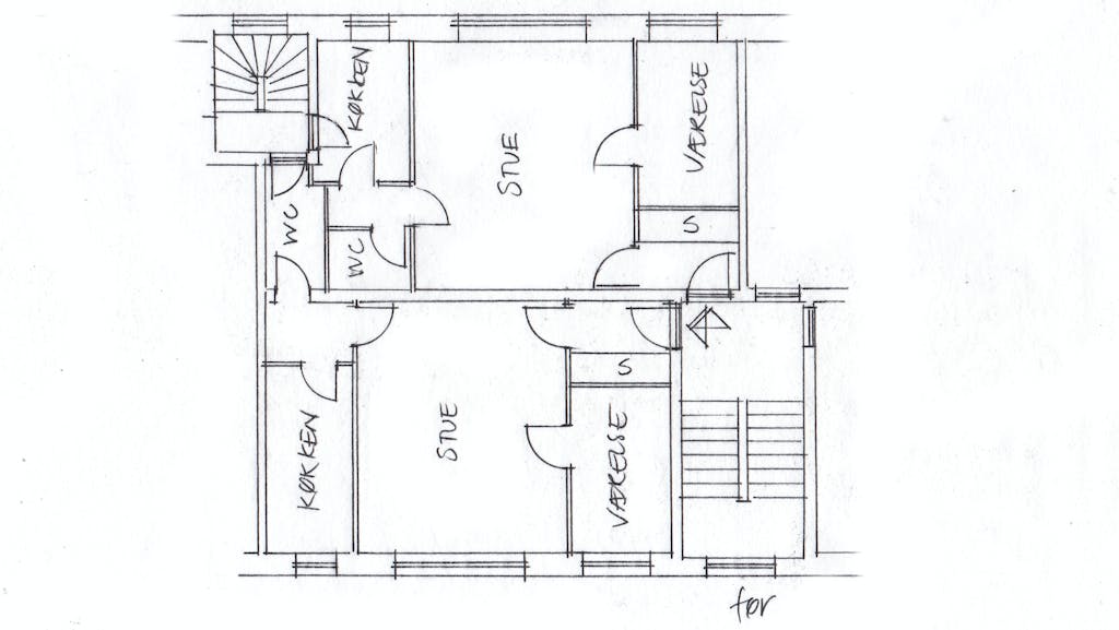
Det er lidt usædvanligt med fire lejligheder pr etage, men det er fordi de kun ligger ud til en facade og så var det vist andelsbevægelsen der engang i 30´erne byggede mange boliger til arbejderbevægelsens medlemmer, der på den måde fik mulighed for at sidde i egen bolig.
Hver lejlighed er en halvanden-værelses med køkken og toilet og altså adskilt via husets midtermur, der er bærende.
Vi ved godt at der skal beregnes osv. når vi laver hul her, det er der flere i ejendommen der har fået gjort.
Vi glæder os til mere plads men også til at få dagslyset igennem lejligheden.
Vi er begge lige blevet færdige med vores studier og har lyst til at nyde livet lidt inden børn, men der må gerne ende med at være to gode værelser samt selvfølgelig køkken-spise-opholdsstue.
Opbevaring er også et vigtigt punkt for os.
Vi håber meget at Lone vil kigge på det.
Mange hilsener Carina og Karl.
Kære Carina og Karl,
Tillykke med tilføjelsen, - det vil jeg rigtig gerne kikke på. Det bliver skønt for jer med mere plads og mulighed for at få lyset ind fra begge sider.
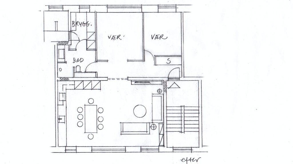
Da jeg går ind for at få alle praktikaliteterne økonomisk fornuftigt på plads, vil jeg foreslå jer at udnytte hjørnet med de to små toiletrum og køkkenet, der har adgang til køkkentrappen, til et nyt, stort badeværelse med adgang til et nyt bryggers, - der igen har adgang til køkkentrappe, så I får en masse opbevaringsplads, vaskesøjle osv., og en brandudgang via bagtrappen.
Tilbage er så at udnytte de eksisterende installationer i det sidste køkken (jeres nuværende) og lægge et nyt rummeligt køkken her i et åbent alrum med opholdsstue.
Det betyder at jeg vælger at blænde jeres nuværende hoveddør for at få god plads i alrum- stuen.
De to ønskede værelser placeres ved den nye indgang.
Her går lidt af arealet til en ny gang, så I får direkte adgang til begge værelser samt til badeværelset fra gangen.
Den eksisterende væg imellem kammer og stue flyttes, så det lille kammer bliver til et fint værelse og den gamle stue bliver jeres nye ekstra stue/arbejdsværelse.
Da I gerne vil kunne nyde al pladsen et stykke tid endnu, kan I lave åbningen 140 cm bred, hvilket sender masser af dagslys igennem til alrummet, men det gør det også simpelt at isætte en fløjdør når I engang vil bruge værelset til soveværelse eller til børneværelse.
Hullet i den bærende mur er ligeledes 140 cm, hvilket ikke kommer til at volde problemer i forhold til ingeniør og tilladelser.