
Multirummet, der (måske) blev væk
Familien her byggede selv drømmehuset, men har et dilemma: Deres såkaldte multirum bruges ikke til alle de aktiviteter, det var tiltænkt. Læs Lone Barlunds råd her.
AfKære Lone,
Tak for en inspirerende blog.
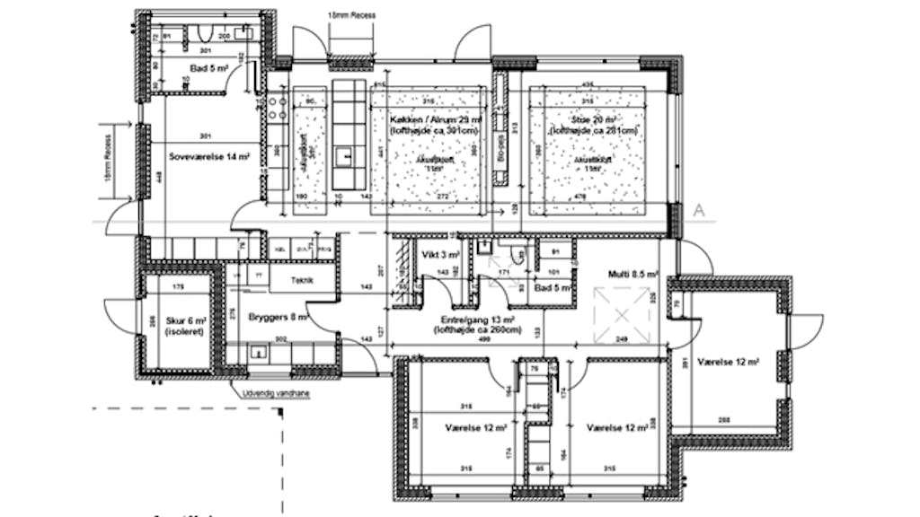
For et års tid siden tegnede og byggede vi nyt hus. Det er vi super glade for, og vi føler, at vi er kommet i mål med mange af vores tanker og ideer. Et rum driller dog stadig - vores multirum.
Rummet er 8 m2 og har et stort ovenlysvindue (1,5 x1,5 m). Rummet ligger for enden af en gang, hvor vores børneafdeling og kontor er.
Tanken med rummet var, at børnene skulle have et sted at mødes, når de ikke ville trække sig ind på deres værelser. Et rum, der også kunne bruges,når vi har gæster, og ungerne har lyst til at holde deres egen fest uden at skulle gå ind på enkelte værelser. Rummet kunne også bruges til bordfodbold/spillerum, eller andre alternativer der lægger op til kreativitet. Tankerne har været mange, men vi har endnu ikke skabt et rum der bruges. Vi er åbne overfor alle forslag. Jeg vedhæfter lidt billeder.
Mvh. Casper









