BREVKASSE Indretning af midlertidig bolig
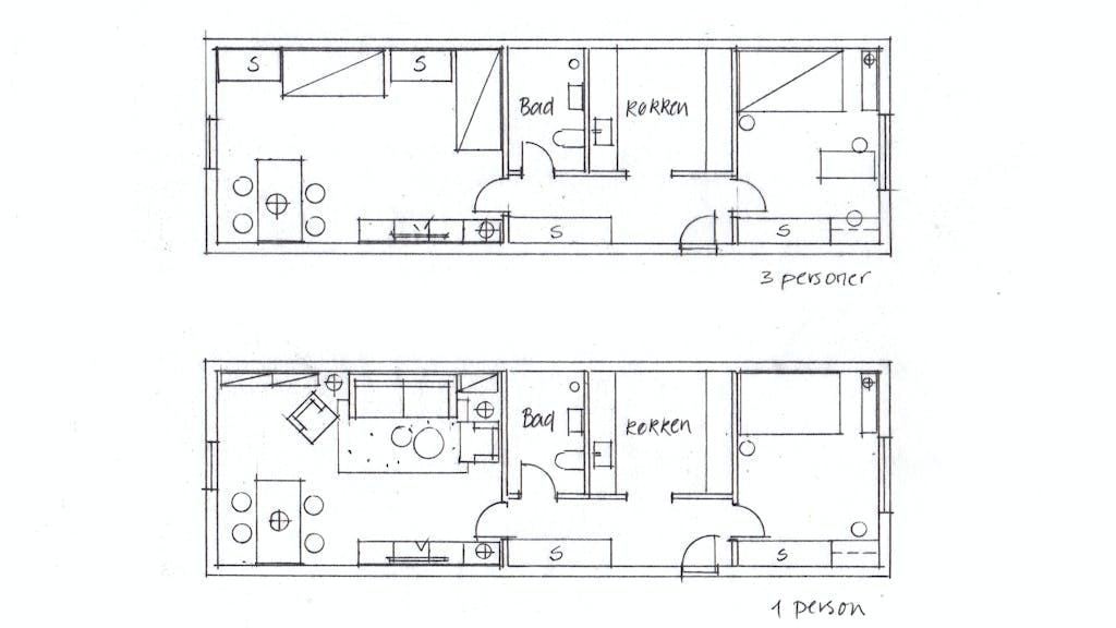
Lejligheden skal indrettes til 3 voksne, hvoraf kun 1 bliver boende i længere tid. Hvordan får man det til at gå op i en højere enhed?
AfLone Barslund
Lejligheden skal indrettes til 3 voksne, hvoraf kun 1 bliver boende i længere tid. Hvordan får man det til at gå op i en højere enhed?
Af