
Hvordan skaber vi en tidssvarende indretning i en gammel herskabelig lejlighed?
Niels og Sofie har købt en herskabelig lejlighed på 114 kvm. De vil gerne give hele herligheden en ordentlig overhaling, og stadig bevare de originale detaljer. Vores indretningsekspert giver dem her sine bedste råd.
Af — 14. december 2016Kære Lone,
Vi kan se, at du på boligbloggen har givet mange gode råd til renovering og indretning af bolig. Vi håber at vi måske også kan blive en af de heldige, der kan nyde godt af din sparring.
Vi har købt en herskabelig lejlighed på 114 kvm, hvor bad og køkken er så godt som originale, så vi har planer om at give hele herligheden en ordentlig overhaling, men vil så vidt muligt gerne bibeholde de originale detaljer.
Vi glæder os til at kunne forme lejligheden ligesom vi drømmer om, men synes også, at det er svært at finde ud af, hvordan vi udnytter kvadratmeterne bedst.
Vi har to store ønsker:
- At få et køkkenalrum i forbindelse med den store tagterrasse (øverst til højre).
- Ikke at gøre den for egoistisk ved at slå for mange vægge ned, så den er fremtidssikret til familieforøgelse.
Umiddelbart tænker vi at rykke køkkenet fra venstre hjørne øverst til højre hjørne øverst, men bliver det for smalt til et køkkenalrum? Vi kunne inddrage det tilstødende værelse, men så har vi et værelse mindre, og at have soveværelse i det tidligere køkken bliver måske for klemt. Rykker vi derimod soveværelset ind i stuen med karnap, har vi store dobbelte glasdøre direkte indtil den tilstødende stue og mindre privathed.
Vi har aldrig bygget køkken og bad før og savner inspiration til, hvordan vi får mest mulig opbevaring uden at gøre rummene for små. Kan vi både have badekar og vaskemaskine i badeværelset? Hvordan får vi mest muligt bordplads i køkkenet? Og hvad kan vi bruge vores kæmpe entre til?
Vi vil så gerne finde nogle langtidsholdbare løsninger. På forhånd tak!
Vh. Niels og Sofie
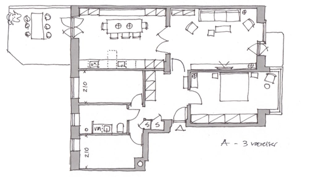
For at få køkken A til at fungere godt, er værelsesvæggen rykket ind i værelset så alrummet bliver ca 3,8 meter bredt og langsiden er indrettet med højskabe på begge sider af en lang bænk, hvilket sparer plads omkring bordet.
Køkken B giver sig selv med en god vinkel med fin bordplads og en række høje eller lave vitrineskabe på langsiden.
Med det liv man har som småbørnsfamilie, ville jeg selv vælge løsningen med det store gavmilde alrum, så der er plads til hele cirkus´et med legetøj, venner og legekammerater og familie.
Den store entré ser forskellig ud i A og B, men den er udnyttet godt med flere skabe i begge udgaver.
Bedste hilsener Lone








