
Hvordan indretter vi familiens første bolig?
En andelslejlighed på 170 kvadratmeter er denne families første 'rigtige' bolig. Men hvordan får man indrettet den, så den er fremtidssikret?
AfKære Lone.
Min søn og svigerdatter har købt en andelslejlighed, som helt sikkert har potentiale til at blive en dejlig bolig for en familie med 2 børn på 1 og 5 år og hyppigt overnattende gæster. Men hvordan gøres det bedst?
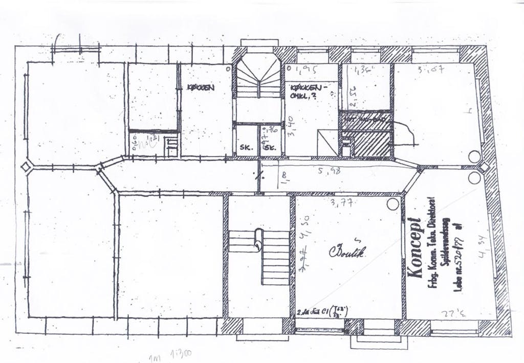
Boligen består af oprindeligt 2 lejligheder. Den ligger i stueetagen, og der er mulighed for at anlægge have / terrasse ud mod gaden, ligesom der er direkte udgang til gården fra et af værelserne. Lejligheden er gammel og nedslidt, så de regner med at det hele nærmest skal renoveres. Det samlede areal er ca. 170 kvadratmeter.
Læs også: 30'er-villaens vilde forvandling
Min søn og svigerdatter har følgende ønsker:
Der ønskes køkken-alrum i de to værelser nederst til højre. De vender ud mod gaden og et areal, der potentielt kan blive have. Dette er ikke muligt på arealet til venstre for indgangsdøren.
Værelset længst oppe i højre hjørne er soveværelse, som gerne må bibeholdes. Det er ret mørkt og her kan man rimeligt uforstyrret have vinduet åbent om natten.
Derudover har de tænkt, at det ville være en mulighed at rive væggene ned fra køkken-alrummet og ud mod gangen, så man ikke har den der lange smalle gang, men åbner lidt mere op.
Vi glæder os til at se, hvordan du synes mulighederne kan udnyttes bedst muligt.
Mange hilsner Karen Sauer







