
Haves: Ny lejlighed - Ønskes: Plads til børnebørn
Helene og hendes mand overvejer at købe en ny lejlighed, men de har ét krav: Der skal være plads til overnattende børnebørn. Se, hvordan BO BEDREs indretningsarkitekt løser det problem.
AfKære Lone,
Vi overvejer at købe en lejlighed og vil høre dig om følgende:
Vi skal til hverdag kun bo to personer i lejligheden, min mand og jeg . Vi har dog en stor familie. Vi ses ca. en gang om måneden. Vi kan være fra 8- 15 personer.
Ofte har vi overnattende gæster fra Jylland samt vore børnebørn. Det er derfor, jeg gerne vil have 3 soveværelser
Jeg har selv gjort mig nogle overvejelser om, hvilke muligheder, der kunne være, men er usikker på hvordan det vil fungere i praksis.
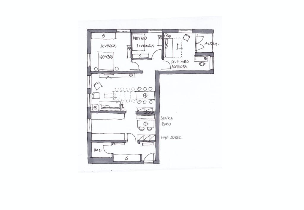
Jeg forestiller mig, at stuen kunne deles i to, således at hvert rum får et vindue. Det vil vel give plads nok til en dobbeltseng i hvert rum?
Det vil halvere stuen, og som jeg kan regne mig frem til, vil det være ca. 13 kvadratmeter tilbage af den oprindelige stue. Det vil vel være nok plads, hvis jeg skal dække op til 15 personer ?
Jeg kunne tænke mig at gøre køkkenet større, således at jeg fjerner væggen og lægger entréen sammen med køkkenet. Jeg er usikker på om jeg helt kan fjerne døren og den væg, som døren sidder i for enden af gangen. I det større køkken vil jeg gerne have plads til både højskabe, vaskemaskine, tørretumbler og et bord til ca. 4 personer .
Det skal lige tilføjes, at køkkenet er nyt med nye hårde hvidevarer. Det er helt hvidt .
Badeværelset er utidssvarende, og desværre er bygningen fredet, så der er ikke så meget at gøre. Jeg kunne dog godt tænke mig at få vaskesøjlen lagt ind under køkkenbordet og at tage lidt af gangen til badeværelset, så det kan give lidt luft og plads i badeværelset.
Måske plads til et badekar.
Ved at tage lidt af gangen håber jeg at kunne få skabe til toiletartikler, håndklæder o.lign.
Gangen forestiller jeg mig at beholde, da det fortsat skal være med garderobeskabe og afsætning til fodtøj.
Håber du kan se nogle muligheder i lejligheden.
Venlig hilsen Helene







