
En ny rumfordeling til de ændrede behov der opstår i en familie med børn
Martin og Laura har brug for hjælp til at se, hvor de kan have opbevaring af tøj og ting, man gerne vil gemme væk. Vores indretningsekspert giver et forslag til en ny rumfordeling, der passer til både voksne og børn.
AfKære Lone
Måske vi kunne være så heldige, at du ville svare lige netop os.
Vi overtager i næste måned et større rækkehus i samme lejeforening, som vi bor i nu.
Det er tilladt at opsætte nye vægge og rive eventuelt opsatte skillevægge ned (der er dog ikke opsat nogen i det nye hus). Det er også tilladt at installere mere køkken - det har vi tænkt os.
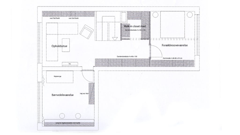
Huset er fra 2013, har dejligt meget lys og på førstesalen et stort smukt rum. Vi ville ønske, vi kunne bo så åbent, men vi er faktisk stensikre på, at vi ikke vil trives med det i længden. Vores to piger (4 og 1 år) er vant til at dele værelse, og de er helt med på, at det fortsat skal være sådan. Deres nye værelse er ret stort, og det er faktisk det, der volder allerfærrest problemer ift. indretning.
Vi forestiller os, at vi i grundplan får opsat en sektion mere køkken modsat den eksisterende sektion. Pt. er der for lidt arbejdsplads i køkkenet. Ud mod gårdhaven på bagsiden af huset, forestiller vi os, at vi skal have spisestue. Her kan ungerne sidde og tegne, når vi kommer hjem om eftermiddagen og en voksen skal tilberede aftensmad mv.
Den planlagte spiseplads er for lille og for tæt på badeværelset - her laver vi en lille hjemmearbejdsplads.
På førstesalen forestiller vi os som sagt, at vores døtre skal have det store værelse 2sydpå”. Vi påtænker at opsætte en skillevæg på højre side af trappen og derved lave et forældresoveværelse. I erkendelse af at vi i dén grad mangler opbevaring, har vi et specifikt spørgsmål: Kunne vi mon på nogen måde lave et "walk-in closet" ud mod ydermuren i forældreafdelingen? Dvs. opsætte en tynd skillevæg fra vinduessprossen og hen til trappen og herinde lave en masse opbevaring med bøjlestænger, hylder mv. Vi er klar over, at selve sovepladsen ville blive lille.
På den modsatte side af trappe og repos på førstesalen forestiller vi os at have dagligstue. Vi har mange bøger, som vi vil opbevare i modulreoler opsat på ydervæggen, sofaen skal trækkes ud fra rummet og vi skal have plads til både en gammel gyngestol i klassisk, dansk design og et par Lufthavnsstole.
Vi er meget åbne overfor input - vi har brug for hjælp til at se, hvor vi kan have opbevaring af tøj (både voksnes og børns) og ting, man gerne vil gemme væk (men som man samtidigt har brug for). Måske tænker vi helt forkert ift. de to plan? Eller på fordelingen af rum?
Mvh. Martin og Laura







