
BREVKASSE Sådan forvandler eksperten et klassisk parcelhus, så det passer perfekt til en børnefamilie
Parcelhuse er danske børnefamiliers foretrukne, men den karakteristiske arkitektur er ikke nødvendigvis optimal for en flok. Se, hvordan indretningsarkitekten løser det.
AfLone Barslund
Hvis du har børn, bør du bo i et parcelhuskvarter.
I hvert fald hvis du lever i en børnefamilie. Det slår en netop offentliggjort rapport fra Realdania fast.
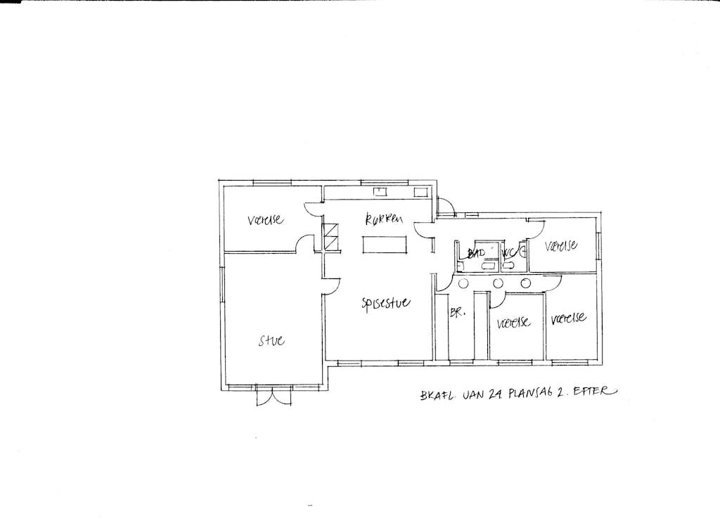
Men hvordan skal parcelhuset indrettes, så børnefamilien faktisk får mest ud af det?
Det spørger et par vores indretningsarkitekt Lone Barslund om, og nedenfor finder du hendes svar og tegninger.











