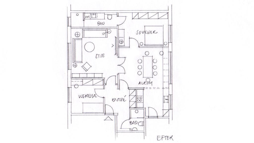
Totalforvandling fra ældre bolig til moderne familiehjem
Familien har erhvervet sig et dødsbo og ønsker at omdanne det til et brugbart hjem for den moderne børnefamilie. BO BEDREs indretningsekspert guider her!
AfLone Barslund
Familien har erhvervet sig et dødsbo og ønsker at omdanne det til et brugbart hjem for den moderne børnefamilie. BO BEDREs indretningsekspert guider her!
Af