
Tilbygning eller ej?
Det er svært at se, hvordan det kan lade sig gøre at forbedre indenfor de eksisterende rammer, så en tilbygning er en god løsning for denne familie, mener BO BEDREs indretningsekspert.
AfHej Lone,
Vi er en familie på 5, som har boet i samme hus i 10 år. Vores behov dengang og nu er noget anderledes, og vi ønsker derfor at ændre i indretningen.
Vi har selv prøvet at tegne på det, men er ikke helt sikre på, det er optimalt for os og håber derfor, du evt. kan komme med et bedre/mere optimal løsning på vores ønsker.
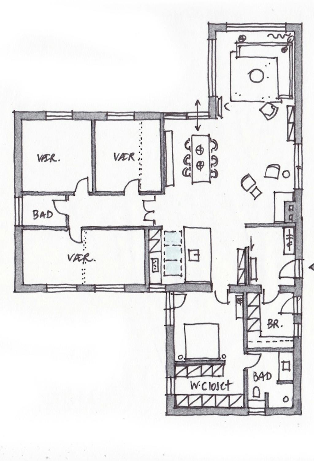
Jeg har vedlagt et dokument, med vores nuværende plantegning og vores bud på ny plantegning.
Vi vil selvfølgelig helst ændre indenfor eksisterende rammer, men kan ikke se, hvordan det kan lade sig gøre. Derfor har vi tilføjet en tilbygning på ca. 56 kvadratmeter. (8 meter langs nuværende væg og 7 meter ud)
Kan du se løsninger i den nuværende plantegning, som kan efterkomme vores ønsker eller en mere optimal løsning inkl. den ny tilbygning? (Vi ønsker os separat voksenafdeling og børneafdeling, større alrum ved stuen, større børneværelser og to badeværelser.
På forhånd tak.
Venlig hilsen Trine og Jan








