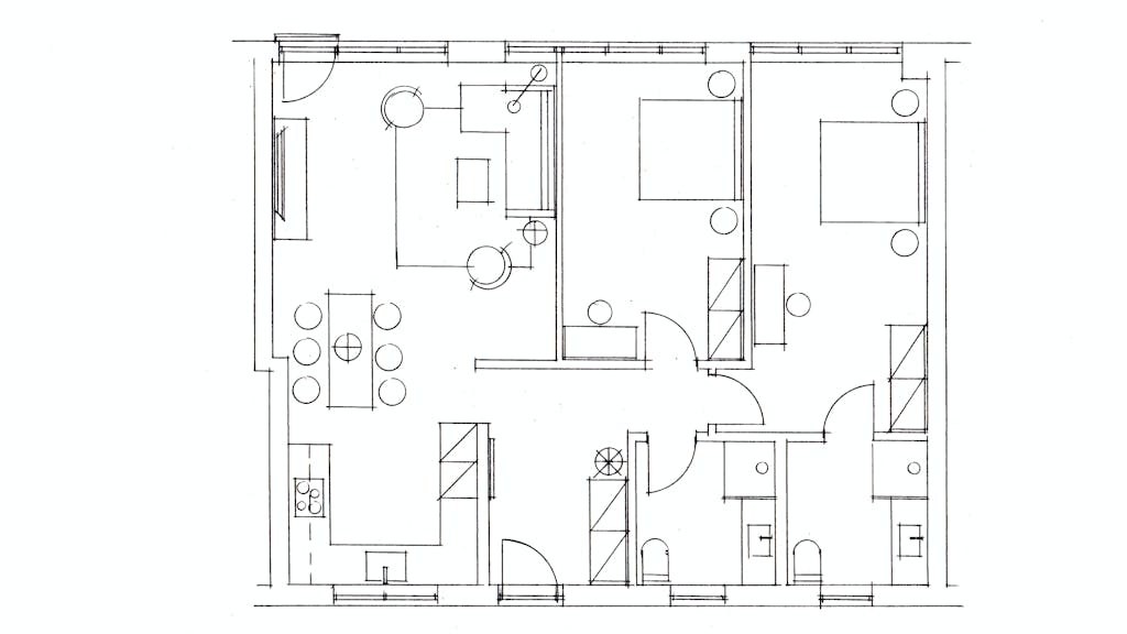
BREVKASSE Omfattende ombygning af en 3-værelses studielejlighed
Det ene værelse skal nedlægges til fordel for mere plads i køkkenet og stuen. Se her, hvordan arkitekten vil løse rumfordelingen.
AfLone Barslund
Det ene værelse skal nedlægges til fordel for mere plads i køkkenet og stuen. Se her, hvordan arkitekten vil løse rumfordelingen.
Af