BREVKASSE Vores ældre 70'er-køkken skal moderniseres. Hvordan griber vi det an?

Indretningsarkitekten Lone Barslund giver sine bedste råd til, hvordan familien kan modernisere sit køkken fra 1971 og samtidig understøtte husets nuværende karakter.

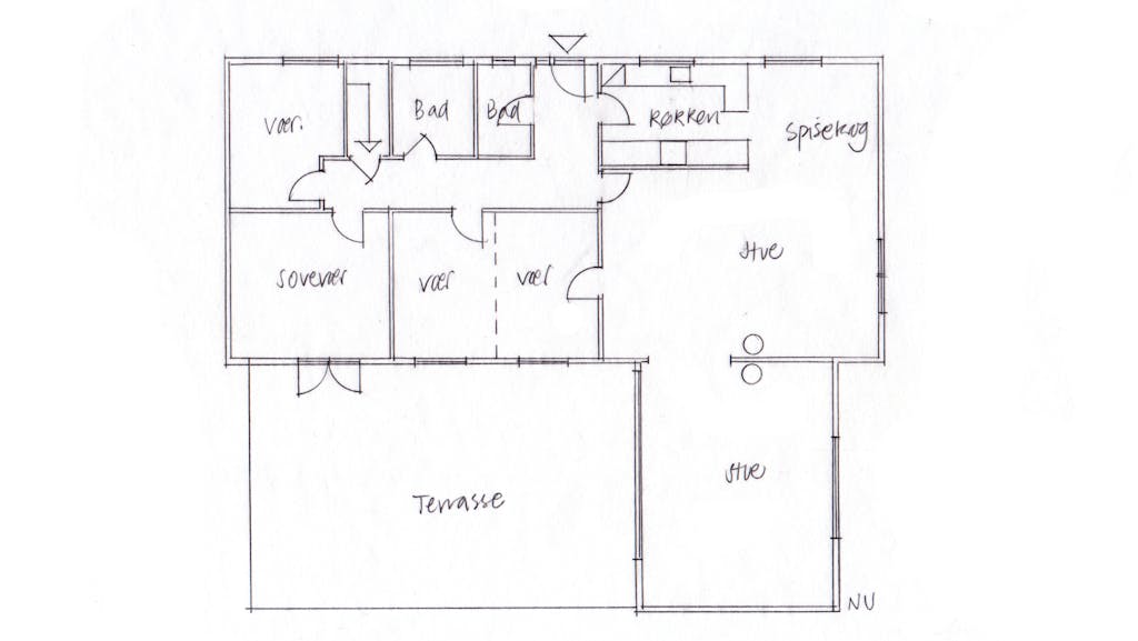
Den nuværende planløsning

Den nuværende planløsning.

© Lone Barslund

Kære Karina

Jeg synes, at det er en god idé at fjerne væggen mellem køkken og stue for mere kontakt og mere dagslys.

Da køkkenfacaden vender mod øst, kan I desuden overveje at isætte store ovenlys, så de sidder over gulvet med start 60 til 70 cm fra facaden. Østvendt ovenlys giver et dejligt lys, der aldrig blænder og heller ikke skaber for megen varme.

Jeg synes til gengæld ikke, at det er en god idé at lukke døren imellem entré og køkken, da det vil tvinge jer ud på en omvej igennem stuen med tunge varer.

Jeg vil foreslå, at I forlænger køkkenet hele vejen langs facaden, så I får både vask og kogeplads på langsiden.

Det sidste stykke til højre for det sidste vindue, kan I møblere med overskabe i hele højden, da I ikke får brug for bordplads her til at arbejde på. Med overskabe, der står på bordet, kan familiens mindste nemt selv nå deres kopper og sager, og I får afsluttet køkkenet med et fint vitrinemøbel.

Køkkenets anden side, hvor dele af væggen rives ned, lader I så meget væg tilbage, at der kan stå 3 højskabe – køl, frys og ovnskab. Der giver plads til at jeres spisebord kan placeres ud for køkkenet med praktisk afstand til mad og service.

For at få mere ro på indretningen, og en længere væg at møblere op ad, ville jeg blænde døren imellem stue og værelse og i stedet placere en ny dør til værelset ude fra gangen.

I hjørnet mellem den nye brede havedør og jeres brændeovn indrettes jeres nye hyggekrog med sofa, lænestol og så videre. Da døren aldrig vil blive jeres primære udgang, men mere en ny og effektfuld lysgiver, gør det ikke noget, at møblerne fylder.

Den nye ubrudte væg overfor vil være rigtig god at indrette med lave reoler i hele længden med plads til billeder og lamper ovenover. Den vil også helt naturligt lede jer igennem rummet og videre ud til den anden opholdsstue - som jeg mistænker, ikke vil blive brugt helt så meget med den nye alrumsindretning.

Nye egetræs parketgulve gerne som planker, vil give en smuk bund i det ret store rum.

Mange hilsner
Lone

Forslag til ny planløsning

Forslag til ny planløsning

© Lone Barslund

Kære Lone

Tusind tak for dit forslag. Det er vi meget glade for!

Det forener at give lys og at modernisere, samtidig med at respekten for husets alder og nuværende udtryk fastholdes. Det kunne vi ikke selv komme op med.

Endnu en gang tusind tak - for dygtig hjælp og en inspirerende brevkasse.

De bedste hilsner fra
Karina og familie

LÆS OGSÅ