BREVKASSE Indretningseksperten guider: Sådan skaber I et mere funktionsdygtigt køkkenalrum

En læser har spurgt vores indretningsarkitekt Lone Barslund, hvordan de kan få plads til både dagligdag og gæster. Se svaret her!

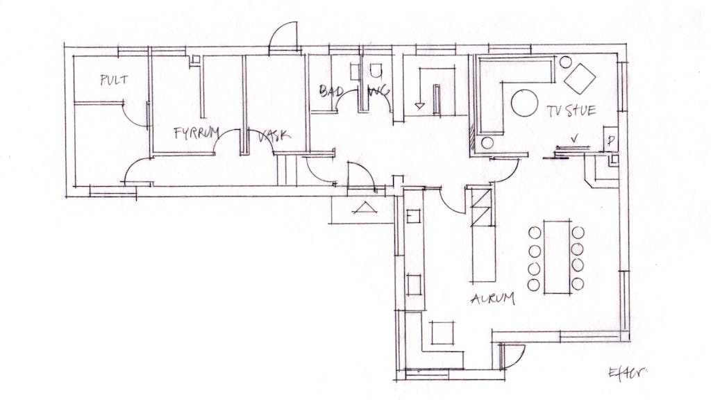
Plantegning nu

Plantegning over huset

© Lone Barslund

Kære Camilla

I har et rigtig godt udgangspunkt for en ny indretning, som kommer til at passe fint til jeres socialt aktive hverdag med to mindre børn, legekammerater, familie og venner. I skal selvfølgelig have skabt et åbent og venligt køkken med mere plads og kontakt til spisebordet.

Jeg ville selv sætte stor pris på at have et mindre sted med fred og ro, hvor man kan trække sig lidt tilbage, eller hvor ungerne kan gå ind og se film, mens de voksne sidder længere over mad og vin, og det kan I nemlig få, som du selv er inde på, ved at indrette stue i de to sammenlagte værelser.

Skorstenen kan bruges til at montere en gaspejs med kik fra begge rum, alternativt biogas. Det er super hyggeligt med ild i pejsen når man sidder bænket ved bordet. For at få en god plads til fladskærmen, skal I overveje at gøre åbningen mindre.

Selve køkkenet indrettes med en forlænget side ved vinduet, hvor I også flytter kogepladsen over, så siden ind mod stuen kan åbnes undtagen ud fra hjørnet, hvor der skal være plads til to højskabe. I forlængelse af dem har jeg tegnet en fri bordplade på 180 cm længde, som er fin at arbejde og sludre ved, mens maden anrettes.

I forlængelse af bordet kan I enten nyde de mange meter arbejdsplads eller I kan eventuelt afslutte med en hjørnebænk, som hyggekrog til børnene eller til en kop kaffe med kik til haven.

Ud mod jeres trapperum kunne jeg godt tænke mig, at I gjorde kontakten og kikket bedre, ved at isætte et fast glasparti ved siden af køkkendøren og sætte glas i den. Jeg tænker, at det giver rummet noget ekstra at få dagslyset på tværs af huset her.

Af hensyn til siddepladser i den lille stue er døren ud til trapperummet blændet.

De bedste hilsner
Lone

Plantegning efter

Forslag til ny planløsning

© Lone Barslund

LÆS OGSÅ