
Hvordan får vi mest muligt ud af udsigten over fjorden?
Pia og Dan har en skøn stue med udsigt over Flensborg Fjord. Men der er noget galt med indretningen, så de får ikke nok ud af det smukke vue. Se, hvordan Lone Barslund hjælper dem.
AfVi skriver til dig for at få hjælp /ideer til hvordan vi kan indrette vores stue bedst. Den er ret stor, ca 50 m2 og med loft til kip i ca halvdelen inderst i rummet. Vi har udsigt over Flensborg fjord. Vi vil gerne have ny sofa , sofa bord og nyt reol system evt. fra String og ny lænestol. Vi har to børn, en dreng på snart 5 og en på 5 mdr . Vi er selv 36 år og vi er bare gået lidt i stå i forhold til at indrette stuen bedst muligt. Har du et godt forslag til, hvordan vi kommer videre?
Dan og Pia fra Sønderjylland
Kære Pia og Dan.
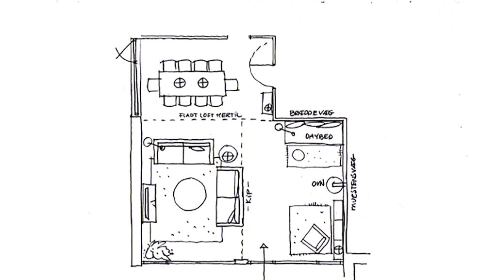
Jeg har tegnet jeres stue op med nuværende og evt. fremtidig møblering, så det er til at se forskellen. Spiseafdelingen er fint placeret nær køkkenet under det flade loft og med udgang til terrassen – det fungerer fint. Her er plads til jer og gæster, så eneste indvending vil være at loftet trykker rummet en del, som det står med mørk bræddebeklædning, så her ville jeg male loftet heldækkende hvidt. I kan overveje at male endevæggen i en farve, hvor I så hænger jeres billeder op på en vandret linje, så de følges ad med spisebordets retning.
Stuens anden del, der adskiller sig fra spiseafdelingen på grund af loftet der går til kip og den gule murstensvæg bag brændeovnen, er vanskeligere. På grund af rummets dimensionering kan træloftet fint bevares her, mens den gule murstensvæg med fordel pudses op, så der kommer mere ro på. Den korte væg med reoler/daybed, er også beklædt med brædder, men pudser I murstensvæggen op, kan den korte væg godt blive stående i træ. Det giver en vis intimitet i det kommende hyggehjørne.







