Hjælp! Hvordan får vi en bedre indretning i køkkenet med masser af opbevaring?

Familien skal modernisere køkkenet, og i den forbindelse spørger de indretningseksperten til råds. Hun kommer med et forslag, hvor der både er god opbevaringsplads og en siddeplads til børnene.

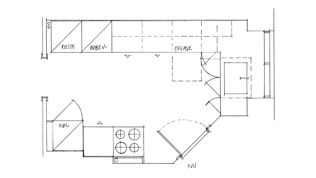
Spiseplads i køkkenet, før indretningsekspertens forslag
© Lone Barslund

Kære Nina

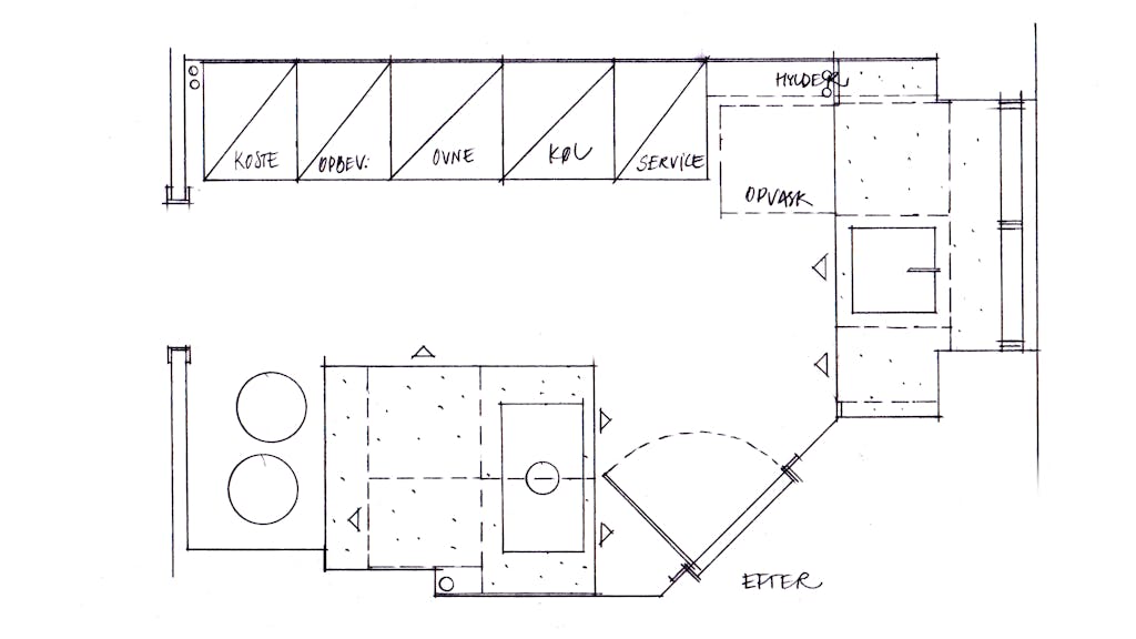
Det har aldrig været hensigtsmæssigt at stå klemt inde imellem vask og lågen på opvaskemaskinen, så selvfølgelig skal de to funktioner placeres ved siden af hinanden hvis muligt.

Der kan godt blive plads til maskine og vask ud for jeres vindue, hvor dybden er til det, og det giver så også et lidt bredere skuffeskab til højre for vasken, mens det venstre, sidste stykke bliver et blændstykke med knopper til viskestykkerne.

Når der trækkes plads fra til opvaskemaskinens låge i fuld, vandret åbning, bliver der en god langside tilbage, som jeg har indrettet med højskabe hele vejen.

I beholder kosteskab, opbevaring- og kølefryseskab, mens der også er blevet plads til et højskab til ovne og opbevaring samt et sidste højskab til alle de ting, som før befandt sig i jeres overskabe.

På modsatte side har jeg vendt kogepladsen vinkelret ud fra væggen, så der er to skuffeelementer under den nye brede kogetop og et skuffeskab, der vender ud mod ganglinjen, mens der under bordpladen inderst er et element eventuelt med åbne hylder til kogebøger, lager af flåede tomater eller noget helt tredje.

Siddepladserne sker ved den 30 cm. ekstra dybe bordplade for enden, der jo også giver ekstra god arbejdsplads for den, der huserer ved gryderne.

Alt i alt er jeres ønsker opfyldt og med ekstra opbevaringsplads oveni.

De bedste hilsener
Lone

© Lone Barslund