Børneværelse
© Anastasiia Krivenok

Brevkasse: "Hvordan får vi plads til et ekstra børneværelse?"

Hvordan skaber man to teenageværelser ud af ét børneværelse? Bygningsarkitekt Lone Barslund kommer med gode råd.

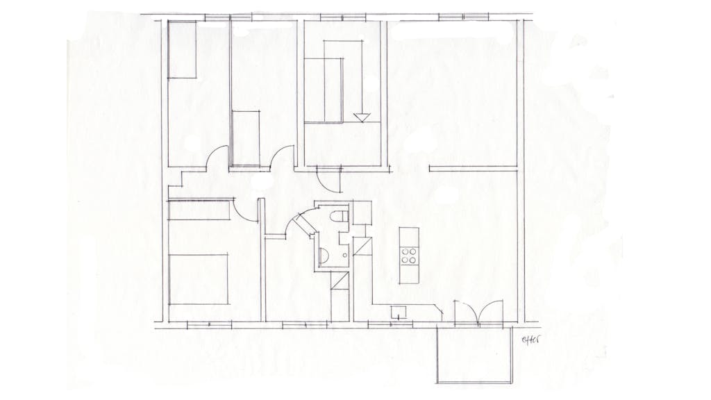
Planløsning nu

Planløsning nu

© Lone Barslund

Kære Brønshøj-familie

Jeg kan se på jeres plan, at stuen er 401 cm bred og jeres soveværelse 440 cm bredt. De 40 cm gør en stor forskel for møbleringen efter en opdeling - og så er der også forskel på de to rum, da vinduet sidder centreret i soveværelset, men skævt i stuen.

Der er også den fordel i, at børneværelserne kommer længst væk fra alrum og stue, hvor der er tv, musik og gæster med dertil hørende snak og støj.

Alt i alt vil jeg mene, at det giver bedre mening at dele det store værelse op, da en skillevæg kan placeres udfor vinduets midterpost, så begge børneværelser får et oplukkeligt vindue og rimeligt dagslys.

For at få det til at gå op, skal jeres nye soveværelse kortes af, så der kan laves direkte adgang til det inderste børneværelse fra en ny, lille gang. Den nuværende værelsesdør flyttes og bruges i den nye væg til jeres soveværelse.

For enden af den lille gang er der plads til at bygge et skab op omkring skorstenen.

Alle disse omrokeringer kan laves uden at ødelægge gulve, vægge eller stuk, så I på et senere tidspunkt kan vende tilbage til den nuværende ruminddeling.

Bedste hilsner
Lone

Planløsning efter

Planløsning efter

© Lone Barslund

LÆS OGSÅ