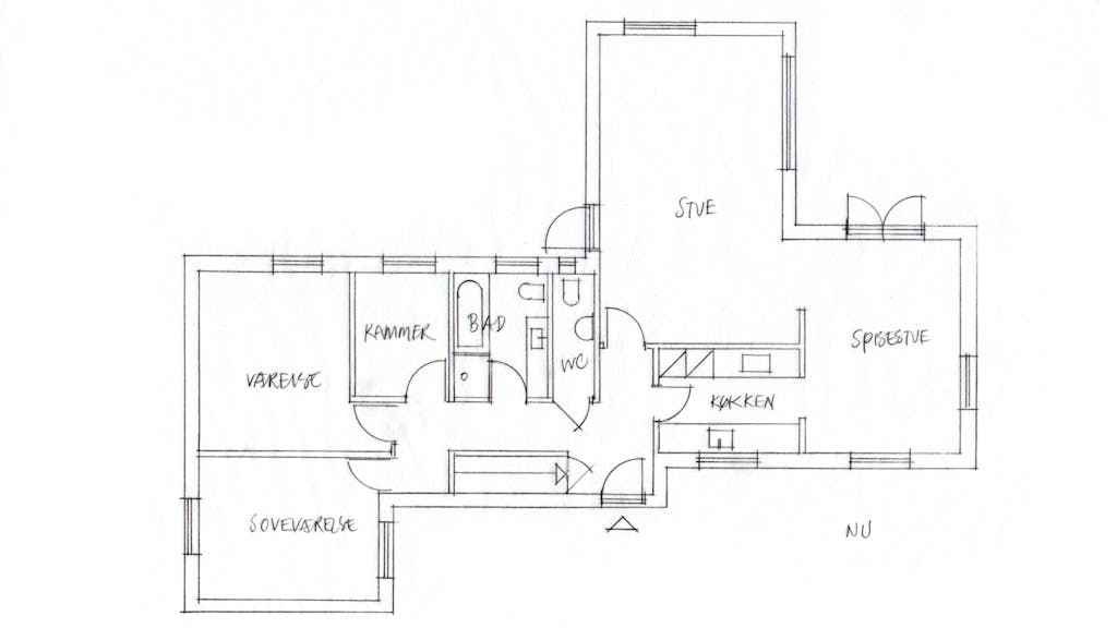
Vi mangler et ekstra børneværelse. Hvad gør vi?
I takt med at Ivan og Mettes børn bliver større, er der brug for mere plads i hjemmet. Her får de indretningsekspertens bud på en løsning.
AfLone Barslund
I takt med at Ivan og Mettes børn bliver større, er der brug for mere plads i hjemmet. Her får de indretningsekspertens bud på en løsning.
Af