
Lejlighed i to plan er svær at møblere
Laura og Mads har en lejlighed i to plan, som de synes er svær at møblere. Ikke mindst fordi der er et område i midten, som slet ikke får dagslys.
Af — 01. august 2017Kære Lone.
Vi kan jo godt se at du får rigtig mange henvendelser med spørgsmål vedrørende udfordringer med nye lejlighedstyper og det besvær der følger med at få indrettet dem godt, smukt og praktisk, men vi håber at du vil tage fat i vores alligevel, da vi tillægger din mening stor betydning, fordi du plejer at løse problemerne rigtig godt.
Vores kommende bolig er i to plan med et stort midterparti uden direkte dagslys, da vi ligger i et hjørne. Det øverste plan er en stor tagterrasse med et lille opholdsareal. Vi regner med at indrette det med terrassemøbler, der kan stå inde og ude.
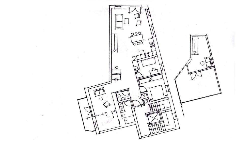
Som du kan se på planen, så foreslår byggefirmaet sofagruppe og spiseplads i samme afdeling mens midterrummet virker spildt med to arbejdsborde…
De næste år er vi bare os 2 voksne, men der kommer forhåbentlig et par børn til, så vi får brug for at inddrage en del af den bagerste stue til værelse.
Vi håber du kan foreslå en rigtig fin udnyttelse af de mange gode, men lidt besværlige kvadratmeter.
Laura og Mads.
Hej Laura og Mads.
Det giver nødvendigvis en del uro at det store rum både indeholder køkken, spiseplads og stuemøbler, samtidig med at der er åbent i trappeløbet til øverste etage.
Sørg for at placere jeres møbler så I tydeligt viser hvor de forskellige funktioner er, for eksempel ved at placere sofaen delvist med ryggen til køkkenet.
Da I også kommer til at mangle opbevaring, kunne I overveje at lukke trappen og få indrettet et stort kosteskab neden under - det vil helt sikkert også dæmpe trinstøj fra trappen og give rummet en bedre akustik.
Mellemrummet uden dagslys ville jeg udnytte med reoler/ skabe og måske bare et stort smukt gulvtæppe, hvor I så efter behov kan placere en daybed eller et skrivebord. Det kan også være super godt med et åbent areal når I får barn, så der er god plads til legetøj og kolbøtter,- når nu stuen og spiseafdelingen er mere tæt møbleret.
På væggen op imod gæstetoilettet kan I hænge eller stille et lavt møbel som supplement til entré opbevaring og evt. male en flot farve og hænge et stort billede eller spejl op, så I markerer afslutningen på det lange rumforløb. Det vil også, sammen med reoler og tæppe, være med til at fjerne fornemmelsen af gangareal og gøre det til et reelt rum i stedet.
Den lille stue, hvor I på sigt tager et stykke fra til værelse, kan indrettes med en gæstebriks og / eller en arbejdsplads, så I får mulighed for at trække jer tilbage fra det store fællesskab i den anden ende.
Lone.







