Skal familien bygge om eller ej? Indretningseksperten guider dem

Familien overvejer at bygge om i stueetagen i deres hus fra 1959, så de kan få et hjemmekontor og et veletableret alrum. Indretningseksperten giver her et forslag til hvordan.

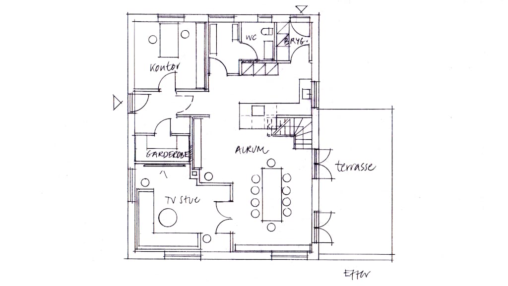
Stueplanen inden indretningsekspertens forslag
© Lone Barslund

Kære familie

Jeg synes heller ikke, at I får noget fornuftigt ud af at forsøge en åbning imellem køkkenet og den nuværende spisestue. Dels, fordi køkkenet stadigvæk er lidt spøjst indrettet på grund af døre og åbninger og dels, fordi det så stadig vil ”lande” med direkte adgang til jeres toilet midt i det hele.

Jeg synes, at I får meget mere ud af at inddrage den midterste stue, hvor I vil få så meget mere glæde af haveadgangen og i det hele taget udnytte gennemgangsarealet til et fælles område, hvor det netop er helt i orden, at der er færdsel og gang i den. Lægger I også værelset til og ændrer vinduet her til et havedørsparti mere, får I rigtig god plads og masser af luft til et stort spisebord, reoler, vitriner og måske en brændeovn oveni. Genbrug jeres fløjdøre og sæt dem i ind til opholdsstuen, så I kan lukke, men stadig får lyset på tværs.

Den smalleste del af stuen kunne I som vist simpelthen lukke af og lægge til entreen, så I får et stort garderoberum, der kan holde til alle jeres sko og overtøj. Jeg vil jo meget gerne have en ekstra dør imellem køkken og toilet, og det kan lade sig gøre ved at indrette kontor i den tidligere spisestue og inddrage en bid til en mellemgang med reoler til diverse opbevaring, hvor døren til toilettet placeres. Sætter I døren til kontoret som vist fra entreen, kan I lave et helt reelt kontor, der kan låses af fra resten af boligen.

Selve køkkenvæggen imellem trappe og spiseplads vil jeg åbne fra det punkt, hvor trinnet er to meter oppe og lave en dobbelt arbejdsplads - her med kogeplade stort set placeret, hvor den er nu. Ved at flytte toiletdøren og lukke af, får I desuden en længere væg med plads til tre højskabe.

Bemærk, at jeg ikke har taget det fjerde med for at få bedre afstand hen til køkkenbordet med vasken. Den lille mellemgang er også rykket en meter ind for at få bedre plads imellem køkkenets to sider.

Jeg ønsker jer held og lykke med en eventuel ombygning.

De bedste hilsner
Lone

Indretningsekspertens forslag til en ny stueplan
© Lone Barslund