Med en stor entré og en lille spiseplads må hjemmet omrokeres.
Af
Lone Barslund
— 25. september 2018
Bedre udnyttelse af al pladsen?
Hej Lone.
Vi har købt et 70´er hus i et plan, hvor vi tror, vi får udfordringer med ankomst-areal og køkken- spisestue, for der er pladsen helt skævt fordelt. Entreen er kæmpestor, men med døre til børneværelser og stue er der ikke megen brugbar vægplads tilbage til overtøj, m.m., og vi har to små børn, to hunde og brug for masser af opbevaring.
Køkkenet er fint nok men vi vil meget gerne have åbnet til spisestuen, der så i modsætning til entreen er lidt for lille til os og vores ønsker om gæster og glade dage omkring et stort spisebord. Den lille spiseplads i køkkenet undværer vi gerne til fordel for mere opbevaring og stor spiseplads.
Vi overtager og går i gang med ombygning medio november, så et hurtigt svar ville være helt fantastisk.
Bedste hilsener fam. Hedriksen.
Kære familie.
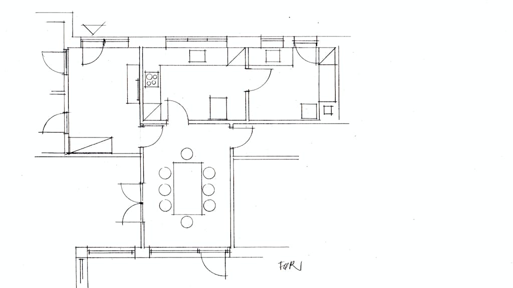
Jeg har lavet to skitser af en ny indretning, der giver jer mere albuerum og plads til jeres ønsker,- mere garderobeplads i entreen og mere plads til opbevaring og et stort spisebord i alrummet. Udfordringen med huset er, at rummene er en anelse smalle, så det gælder om at vende indretningen, så pladsen udnyttes mest muligt, og så I kan komme omkring møbler og inventar.
For begge forslag gælder det, at der er åbnet imellem køkken og spisestue OG imellem spisestue (der er smal) og opholdsstue, så I kan vende bordet og få bedre plads til gæster og glade hverdage. På plan A har jeg flyttet adgangen imellem entré og køkken og derved fået plads til i alt 2,6 meter garderobeskabe på endevæggen. Ved at etablere den brede åbning imellem entré og køkken, kan man forestille sig at det ret store rum også vil blive brugt af jeres børn ligesom der er god plads til hundekurvene.
Køkkenet er indrettet med en langside ved vinduet med kogeplads og køleskab og en parallel halvø med ny placering af vask, så kontakten til dem ved spisebordet er optimal.
Skitse B har en entré med en tre meter lang skabsvæg mod køkkenet, der afsluttes med en bænkeplads ved sidevinduet og en ny åbning for enden, der giver kik til haven straks man kommer indenfor og altså ankomst til stue i stedet for til køkken. Køkkenet er her indrettet som en vinkel med vask og kog hvor de oprindeligt er placeret, og så er der mulighed for at placere en mindre arbejdsø (stiplet) eller to højskabe på vægstykket imellem bryggers og værelsesgang. Jeg har afsat ca 150 cm afstand imellem siderne, så der er god plads til jer alle i køkkenet.