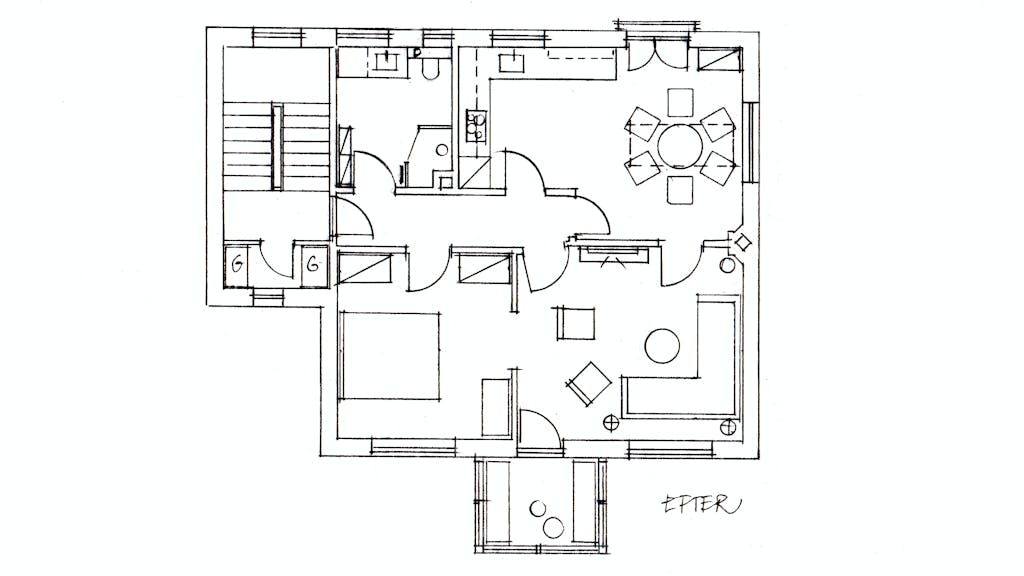
Læs her, hvordan 1. sal bliver ombygget til villalejlighed
Førstesalen skal ombygges i en gammel, fin villa. Men hvordan bliver det gjort smartest? Indretningsekspert Lone Barslund giver sine bedste tips.
AfLone Barslund
Førstesalen skal ombygges i en gammel, fin villa. Men hvordan bliver det gjort smartest? Indretningsekspert Lone Barslund giver sine bedste tips.
Af