BREVKASSE Vores gamle 60'er køkken skal renoveres. Hvordan gør vi?
Karim og Bette vil gerne have mere kontakt mellem stuen og køkkenet, men en stor skorsten står i vejen. Se her, hvordan indretningseksperten Lone Barslund guider parret til en totalrenovering af deres lejlighed.
AfHej Lone
Måske kunne vi være så heldige, at du vil komme med et bud på en bedre indretning af vores lejlighed?
Vi har for nylig overtaget efter en ejer, der har boet der i 47 år uden at ændre på ret meget andet end at koble en brusekabine på køkkenvasken, den står i pigekammeret. Køkkenet er fra 60'erne og helt elendigt, ligesom der stadig kun er det gamle wc ude i entreen.
Vi har købt den, fordi der er gode værelser og beliggenheden er fin, men der skal renoveres og installeres ny el, et nyt køkken og badeværelse i det gamle pigekammer, hvis muligt. Vi vil meget gerne have bedre kontakt mellem køkken og spisestue, men der er en stor dobbelt skorsten i vejen, som ikke kan fjernes, så vi er usikre på indretningen. Det må du meget gerne se på.
Vi ønsker at ende med to værelser, alrum hvis muligt og stue samt ekstra værelse/arbejdsrum. Vi vil blive vildt glade for din hjælp.
Hilsner Karim og Bette, Nørrebrogade
Kære Karim og Bette
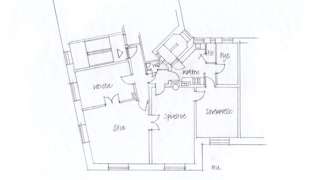
Det er en fin idé at indrette bad i det gamle pigekammer. Her kan I tilslutte vand og afløb til køkkenet uden de store problemer. Der kan fint blive plads til en rummelig bruseniche inderst, et godt vaskebord med vaskemaskine under bordpladen samt et væghængt toilet nærmest vinduet.
Det vil være mest praktisk at vende døren, så den åbner væk fra vinduet med døren stående foran brusenichen, når den er helt åben. Jeg vil mene, at I kan få et rigtig godt køkken ved at inddrage fadeburet, så der bliver god afstand imellem vaskeplads og højskabene, der står ud mod køkkentrappen.
Den store forskel bliver at vælte vægge på begge sider af skorstenen, så der bliver et lille kig på den ene side og en stor åbning ud mod gangen. Det kræver beregning at vælte de bærende vægge, og der skal helt sikkert stå en bæring / søjle i hjørnet, men der skal I have fat i en bygningskonstruktør/- ingeniør for at få det udført korrekt.
Kogepladsen kan med åbningerne på begge sider af skorstenen blive en smuk arbejdsplads med fin bordpladeplads på begge sider af kogetoppen. Jeg vil foreslå, at I bruger det gamle wc til garderoberum, så I får mere plads til tøj, sko og måske støvsugeren.
Jeg har desuden skitseret muligheden for at indrette et nyt, mindre værelse i forlængelse af jeres spiseplads, men det er jeres vurdering, om der er brug for det, eller I foreløbig kan indrette værelset nærmest hoveddøren til arbejdsværelse. Sætter I væg op, skal der som minimum være glas øverst, så spisepladsen får dagslys fra begge sider.
Bedste hilsener
Lone







