Se ekspertens detaljerede løsningsforslag til indretning af parrets lille køkken

Parret har et lille køkken, som de vil optimere og gøre funktionelt. De er dog i tvivl om, hvordan de skal få indretningen til at gå op i en højere enhed.

Kære Anna og Alexander

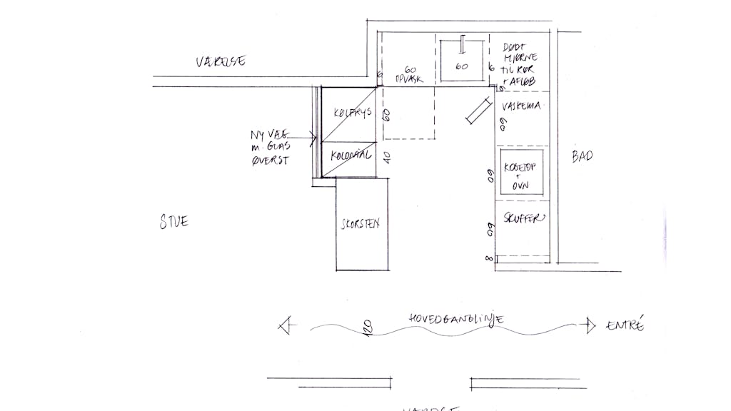
Det er mange ønsker, I har til et køkken med så lidt plads. Allerførst vil jeg sige, at I vil få et langt bedre arbejdskøkken med bordplads på begge sider af kogetoppen, hvis I dropper højskabet til ovnen og placerer ovnen i et underskab i stedet for. Placerer I et højskab til højre for kogetoppen, bliver der dårligt nok plads til skaftet på en stor stegepande, og den øvrige bordplads bliver simpelthen for lille til såvel madlavning som opbevaring af diverse køkkensager.

Jeg kan bedre forstå, at I prioriterer både opvaskemaskine og vaskemaskine, og det gør så, at rørføringen til vaskemaskinen samt jeres afløbsplacering skaber et dødt hjørne, som ikke kan udnyttes til andet end netop afløb og rørføringer (havde I nu ikke behov for at placere vaskemaskinen i køkkenet, kunne hjørnet udnyttes med et skab med udtrækshylder).

Placering af et fritstående køleskab er også problematisk. Det kan under alle omstændigheder ikke placeres i ganglinjen fra entré til værelse og stue, for så vil der kun være 60 cm. tilbage at passere på - og på den anden væg, hvor hullet imellem skorsten og væg kun er 100 cm., er det endnu mere tosset, med mindre I placerer det langt inde i stuen.

Jeg ved godt, at I har haft et mas med at vælte vægge netop for at lave de to åbninger, men jeg vil nu mene, at I får mest ud af at placere køleskabet som vist og altså lukke af ind til stuen igen. I kan sætte et glas i væggen øverst, så I får lidt lys igennem over de to højskabe.

Der burde være plads til et 40 cm. højt kolonialskab ved siden af køleskabet, men er væggene skæve, kan der stå et på 30 cm. i bredden. I får desuden brug for at udnytte et sted i stuen til et vitrineskab til jeres service osv., da der dårligt er plads i køkkenet, så den nye væg giver nok mere ro og et godt hjørne i stuen. Få køkkenbelysningen på plads med indbygget LED i en hylde, der løber på begge vægge.

De bedste hilsener
Lone

Indretningsekspertens forslag: Tegning af indretning i køkkenet
© Lone Barslund