"Stort set alt er originalt og trænger virkelig til en modernisering"
Af
Lone Barslund
— 05. oktober 2018
Kan den lille 30´er villa rumme et moderne familieliv?
Kære Lone Barslund
Vi har mulighed for at overtage mine forældres lille 30´er hus ved arv, men har meget svært ved at se hvordan det hyggelige men utidssvarende hus kan blive en god familiebolig anno 2018.
Der er to meget umage soveværelser til os tre, hvor den ene er teenager og ikke kan nøjes med det lille kammer. Vi kunne også godt bruge et gæsteværelse/ kontor men det er svært at se hvor det kan komme fra. Der er et gæstetoilet, hvilket vi er glade for, men det er placeret midt i huset, så ønsket om et mere åbent køkken lader sig ikke gøre.
Vi håber du vil kikke på det, da det virkelig er et spørgsmål om du kan løse problemerne, før vi beslutter os for ombygning og indflytning eller sætter det til salg. Med hensyn til dine ideer til ombygning, skal du ikke holde dig tilbage, da alt stort set alt er originalt og trænger virkelig til en modernisering.
Den dobbelte garage kom til i slut 80´erne og den er vi glade for da vi har to biler.
Af hensyn til en virkelig dejlig have ønsker vi ikke at bygge yderligere til men håber løsningerne kan ligge indenfor rammerne.
Mange hilsener Ida og co.
Kære Ida
Jeg vil da rigtig gerne komme med et forslag, så I kan se hvilke muligheder der er for at opdatere det lille men meget hyggelige hus.
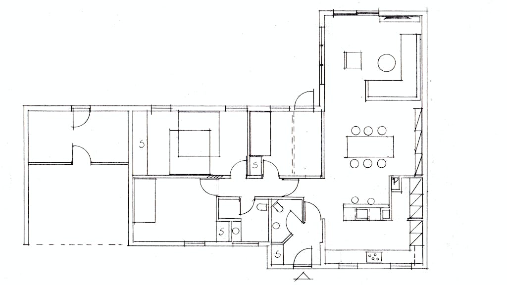
Hvis vi starter med værelserne, så er det relativt enkelt at udvide kammeret med de m2 der ligger i forlængelse af værelsesgangen. Soveværelset bliver derved smallere men der er god plads til skabsvæg og stor seng på grund af længden. Det ønskede gæsteværelse/kontor får I plads til ved at inddrage stuens lille hjørne. I kan enten placere den nye væg så værelset får udgang til haven eller, - med stiplet linje, lave et smalt værelse hvor havedøren bliver i stuen. Er I smarte, så rejser I værelsets nye væg efter det nye gulv er lagt, for det giver jer mulighed for at fjerne den og få mere stueplads igen, den dag jeres teenager flyver fra reden.
Problemet med det lille gæstetoilet, der ligger indvendigt i huset og spærrer for en åbning af køkkenet, kan løses ved at nedlægge det og flytte det til entreen med ny adgang fra vindfanget, så I får to døres afstand imellem spiseplads og toilet. Der skal inddrages noget af entreens areal, ligesom vindfanget også gøres lidt mindre, men fordelen er at I kan koble det nye toilet på faldstamme og afløb i det eksisterende badeværelse.
Køkkenet indretter I med en ny disk i den nu åbne midte med vask og ekstra dyb bordplade, måske med et par siddepladser, kogepladsen kommer hen imellem vinduerne og jeres højskabe i hjørnet ind til fyrrummet. Da stuen ikke er voldsom stor, kan I få stor gavn af at fjerne brændeovnen og erstatte den med en pejseindsats, alternativt en gaspejs fordi I kan placere gassen i fyrrummet lige bagved. Der bliver selvfølgelig mere plads til spisebordet hvis I vælger det lille gæsteværelse, men det er op til jer, hvad der skal lægges mest vægt på.
Ombygningen vil kræve nye gulve og lofter overalt på grund af de mange flyttede vægge, men det giver jer samtidig mulighed for at overveje gulvvarme i huset og dermed slippe af med de gamle radiatorer fra 30´erne. Måske er der mulighed for at ilægge ovenlys i tagfladen imellem disken med vask og jeres spisebord, da det er et forholdsvist mørkt hjørne i stuen.