Indretningseksperten guider: Ny rumfordeling til ældre lejlighed

Familien Nielsson har en charmende og stor lejlighed fra 1911, men ruminddelingen er for upraktisk. Se indretningsarkitektens forslag til en smartere planløsning.

Kære familien Nielsson,

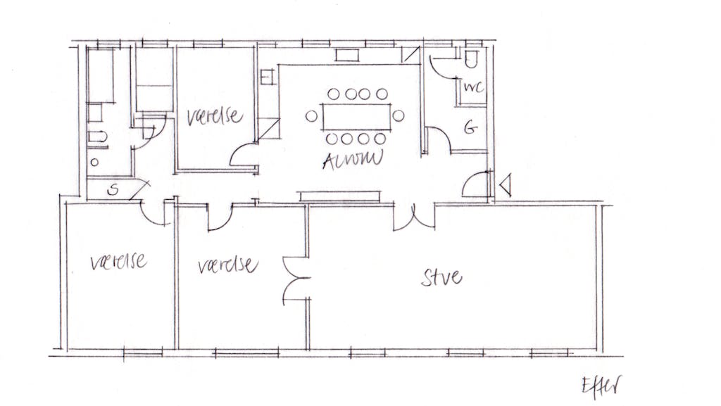
Det bliver ret kringlet at lægge et værelse umiddelbart indenfor entreen, da I skal kunne passere og fortsætte til resten af lejligheden, inklusive det lille toilet.

Men hvorfor ikke rykke køkkenet i stedet for og lægge værelset inderst ved siden af køkkentrappe og badeværelse? Det giver direkte adgang fra opgangen til jeres nye fællesrum, alrummet, hvor der gerne må være masser af liv og trafik. Heller ikke her går det at have direkte forbindelse fra alrum til wc, men det kan løses ved at opføre en mellemgang, så der er to døre imellem ophold og toilet. Reglementet beder ikke om det, men det gør jeg af æstetiske grunde.

Den nye mellemgang kan, udover den store niche til garderobeskab, også udstyres med knager i hele længden, så I får endda rigtig god plads til jeres overtøj. Da I får et fint og rummeligt alrum, kan den mindste stue også ændres, så I får de ønskede tre værelser.

Det betyder, at den tidligere gang lægges til alrummet, mens den nye gang imellem de nye værelser, fungerer som fordeling til værelserne og badeværelset. Det er ikke nødvendigt at have døre i, men et godt loftlys.

Det nye værelse ved siden af alrummet tænker jeg bliver til et barn, og derfor har jeg placeret døren ud til alrummet og ikke i den nye lille fordelingsgang, men det er op til jer, hvordan I vil have flowet i lejligheden.

Bedste hilsner, Lone

Nu
© Lone Barslund
Efter
© Lone Barslund