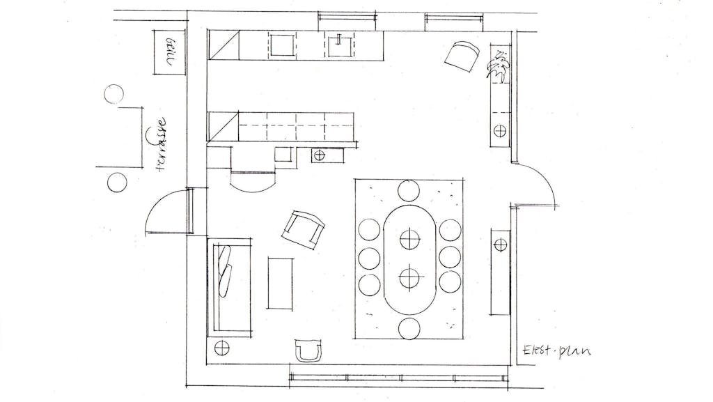
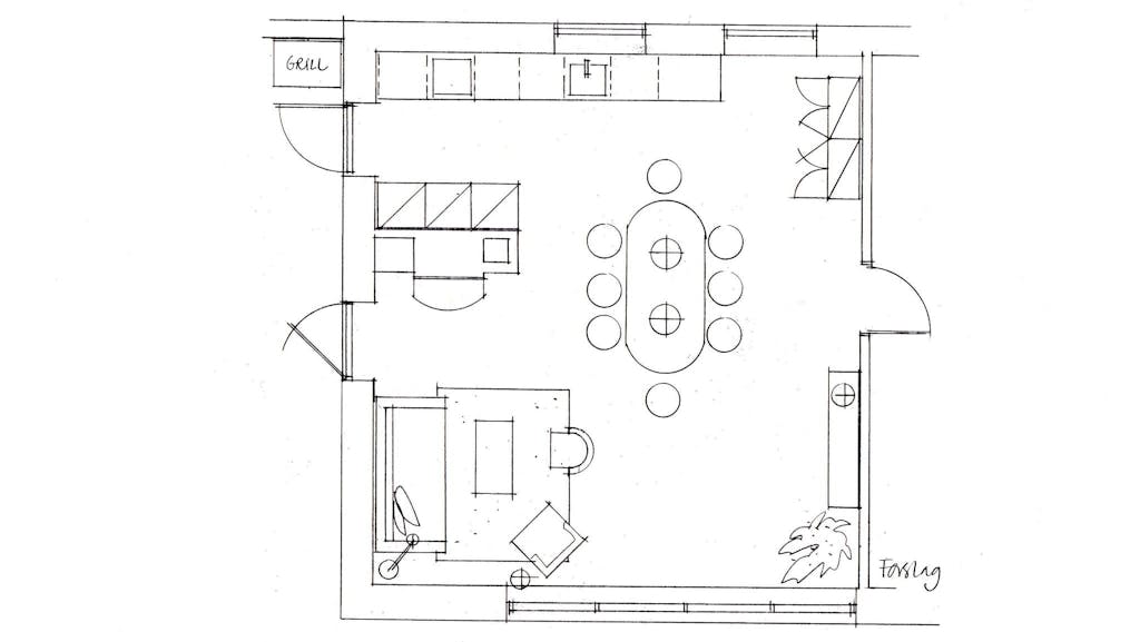
Hvordan skaber man mere plads og lys i både køkken og stue?
Morten og Diana overvejer at indsætte en terrassedør ved køkkenet for at få mere lys. Arkitekten deler sine tanker om overvejelsen.
AfLone Barslund
Morten og Diana overvejer at indsætte en terrassedør ved køkkenet for at få mere lys. Arkitekten deler sine tanker om overvejelsen.
Af