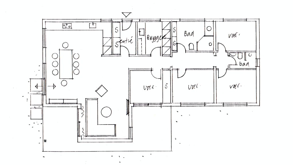
BREVKASSE Huset skal udvides med en tilbygning
Da den tredje efternøler viste sig at være tvillinger, blev pladsen trang. Arkitekten hjælper familien med at løse pladsproblemerne.
AfLone Barslund
Da den tredje efternøler viste sig at være tvillinger, blev pladsen trang. Arkitekten hjælper familien med at løse pladsproblemerne.
Af