Hjælp! Hvordan får vi planløsningen til at gå op med det nye keramikerværksted?

Malenes garage skal være keramikerværksted- og butik, men det kræver en omrokering i plantegningen. Her får hun indretningsekspertens bud på en optimeret planløsning med ideer til både værelse, køkken og badeværelse.

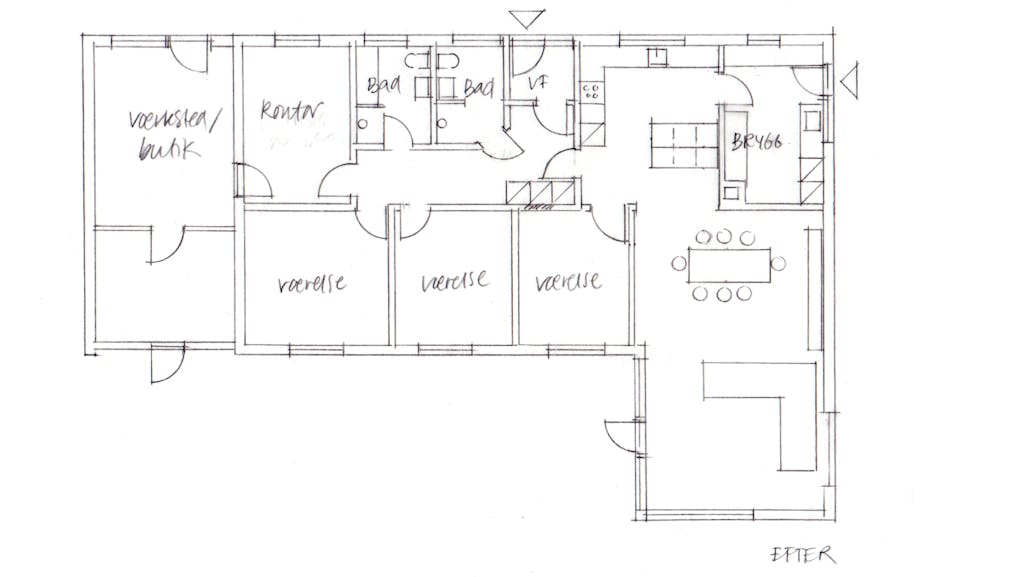
Nuværende plantegning
© Lone Barslund

Kære Malene

Tillykke med dit nye liv som selvstændig, det bliver spændende for dig og helt sikkert dejligt for dine børn at have dig tæt på i det daglige.

Hvis du vurderer, at I kan undvære den mindste vinkel på stuen, så kan der etableres et værelse her, så du kan få det ønskede gennemgangsrum direkte til værksted og butik.

Med en værelsesbredde på 3 meter er der godt 2,25 meter væg tilbage imellem stue og køkken, og den fjerner du, så du får et nyt åbent køkken og dagslys på tværs af huset.

Du kan få meget mere opbevarings- og arbejdsplads med den skitserede ø, der rummer 6 moduler á 60 centimeters bredde. Du kan også overveje at flytte bryggersdøren væk fra husets facade og om i gavlen. Det giver dig ekstra bordplads og opbevaring på den side, hvor døren erstattes af et nyt vindue. Døren genanvender du evt. i gavlen, hvor den erstatter et eksisterende vindue.

Det lille gæstetoilet kan senere hen udbygges, så du får bad to steder - det kan have sine fordele med to teenagere i huset.

Garderobeskabet, der erstattes af badeværelsets nye bruseniche, kan flyttes over på entreens lange væg, hvis du flytter køkkendøren som vist på tegningen.

Rigtig meget held og lykke med din kommende forretning.

Venligst
Lone

Forslag til plantegning
© Lone Barslund