Hjælp! Hvordan får vi indrettet vores landhus, så det passer til vores behov?

Parret har købt et landhus og ønsker ekspertens råd til, hvordan de får udnyttet kvadratmeterne bedst muligt i forhold til deres behov, når de skal i gang med at renovere. Se indretningsekspertens forslag lige her!

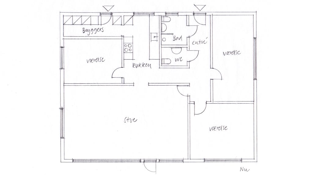
Plan over boligen før ekspertens svar.
© Lone Barslund

Kære Morten og Annelise

Tillykke med det hele. Det lyder helt vidunderligt med byliv, når der er lyst til det og fred og ro på landet, når der skal arbejdes med jeres interesser og ned i tempo med besøg af venner og familie.

Jeg har skrællet al unødig spildplads væk, så I får maksimalt ud af jeres m2. Den resterende lille gangplads er ud for gæstetoilettet, nu med brusebad, så I kan lukke af imellem det og alrummet. Det største soveværelse har således fået tillagt entreens areal, så det nu har sit eget badeværelse og god skabsplads. Det er til gengæld gjort kortere for at få plads til de nye (gæste-)værelser, men det har kun gjort værelset mere harmonisk i størrelsen, hvor det før var smalt og langt.

Køkken, bryggers og værelset mod vest er lagt sammen til et stort, lyst alrum med ny indgang i gavlen mod vest, så man kommer direkte ind i alrummet udefra, men med god plads til at komme af med overtøjet i skabene til venstre for døren.

I kan også overveje at bygge et lille bislag på gavlen, så man står i læ under et halvtag og halve eller hele vægge på to sider. Det kommer helt an på husets beliggenhed, vindretninger, og hvor det nævnte bryggers befinder sig.

Den meget store stue er åbnet ud til alrummet men i øvrigt delt op, så det nye studio ligger i forlængelse af stuen. Her kan fint blive plads til tegne- og arbejdsbord, reoler og en væg til fotobaggrunde, eller hvad I nu får brug for. Jeg har tegnet dobbelte døre imellem de to rum, men det kan også være, at I ønsker en bredere åbning med dobbelte dobbeltdøre eller måske helt lukket kun med dør fra alrummet. Det er op til jer.

Stue og studio er delt op ved stolpen i facaden imellem dør og vinduesparti. Jeg har tegnet et nyt glasparti ind på skitsen, så der også bliver ny adgang fra stuen til haven. De to nye værelser kan desuden ændres til et enkelt stort, men indretter I med to værelser skal der også laves et nyt vindue i gavlen mod øst.

God fornøjelse med det hele.

Lone

Ekspertens bud på en plan over boligindretningen
© Lone Barslund